EasyManua.ls Logo

Trane Technologies 4TTV8036A1000B - Refrigeration Circuits: Heat Pump Models (Continued); 4 Ton HP (048 Models) Refrigeration Circuit; 4 Ton HP (049 Models) Refrigeration Circuit

Default Icon
76 pages
Print Icon
To Next Page IconTo Next Page
To Next Page IconTo Next Page
To Previous Page IconTo Previous Page
To Previous Page IconTo Previous Page
Loading...
36
4T-V8-SF-1M-EN
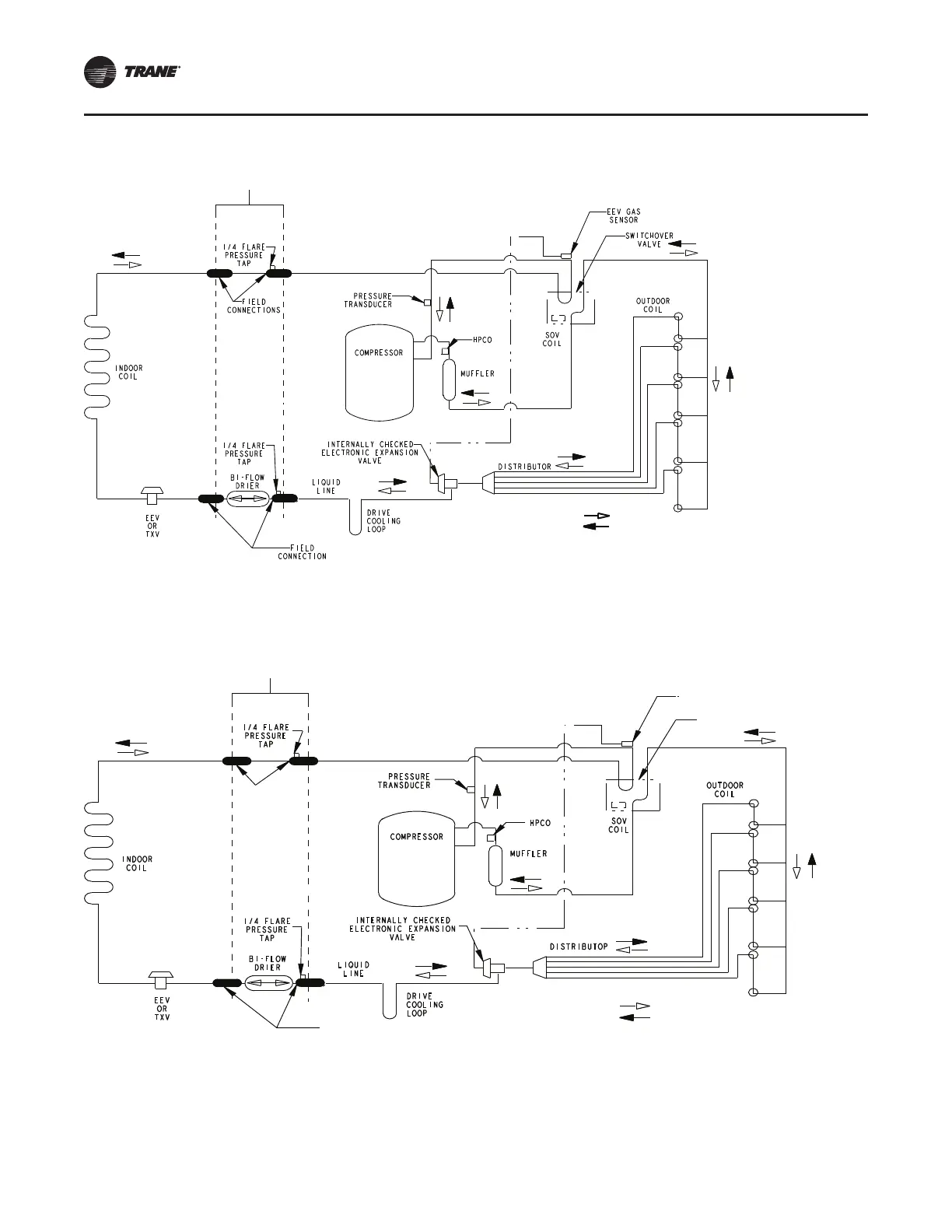
Figure 13. 4 Ton HP (048 Models)
INDICATES DIRECTION OF
REFRIGERATION FLOW
COOLING
HEATING
PRINTED FROM DRAWING D158072rev01
INDOOR
SECTION
OUTDOOR
SECTION
FIELD INSTALLED
INTER-CONNECTING
TUBING
Figure 14. 4 Ton HP (049 Models)
FIELD INSTALLED
INTER-CONNECTING
TUBING
INDOOR
SECTION
OUTDOOR
SECTION
EEV GAS
SENSOR
SWITCHOVER
VALVE
INDICATES DIRECTION OF
REFRIGERATION FLOW
COOLING
HEATING
FIELD
CONNECTION
PRINTED FROM DRAWING D158071rev01
Field
Connections
RReeffrriiggeerraattiioonnCCiirrccuuiittssffoorrHHeeaattiinnggaannddCCoooolliinngg

Related product manuals