EasyManua.ls Logo

Trane Technologies 4TWX6048E - Page 31

Default Icon
52 pages
Print Icon
To Next Page IconTo Next Page
To Next Page IconTo Next Page
To Previous Page IconTo Previous Page
To Previous Page IconTo Previous Page
Loading...
18-GJ89D1-1E-EN
31
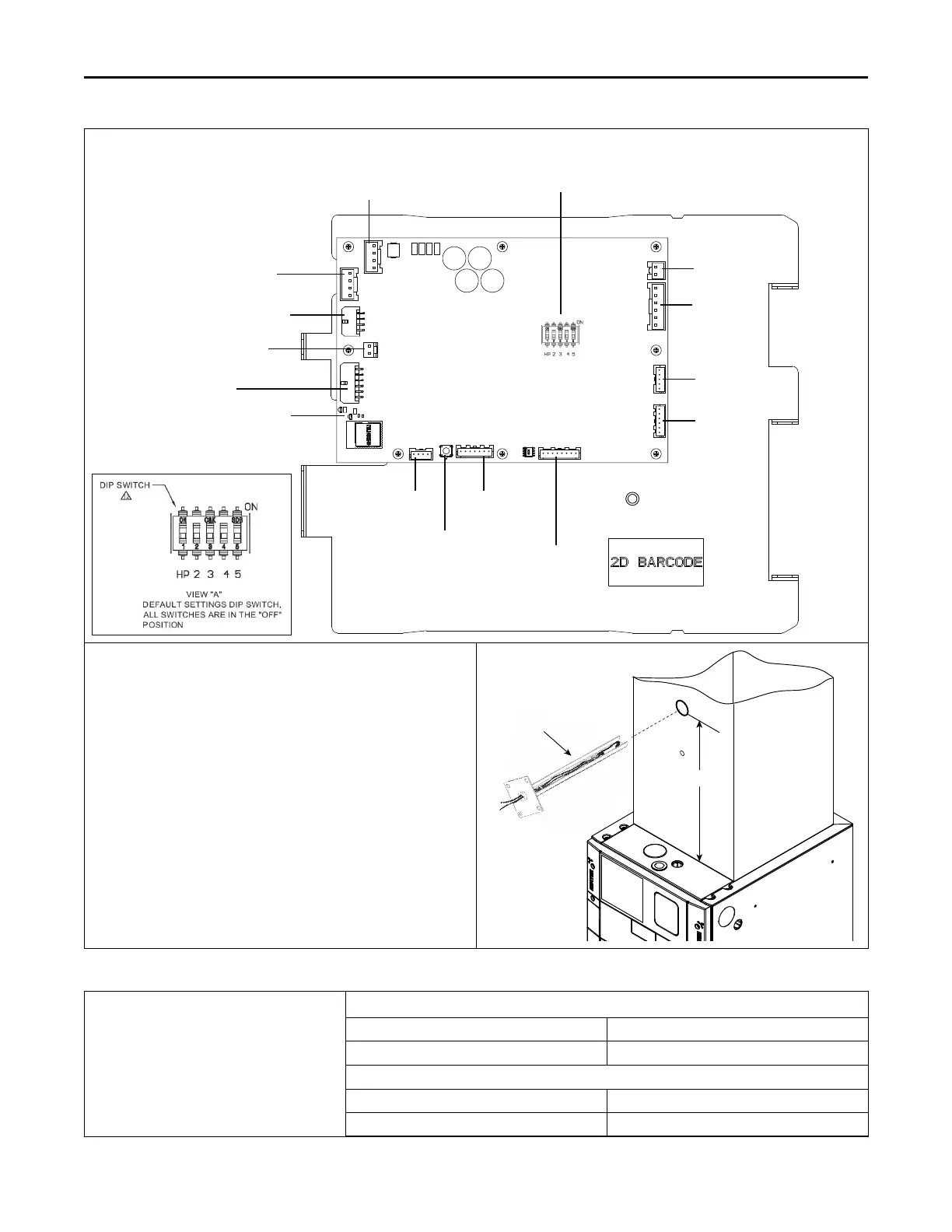
7. Secure the sheathed wiring to the control pocket mounting plate using the factory supplied wire ties attached to the tabs as shown.
Distribution
Board
AHC
View A
J8 24 Volt Input
S2
J10
Electric HT
J7 Motor
J1 EEV
J3 Sensors
J2 CAN
Connector
J5 CAN Connector
J14 External Switches
and Humidifier
J15 24 volt low voltage
harness
J11 S
upply Air Temperature
Sensor (SAT)
LED
J13 Sensors
S1 BLE
Button
J12
8. Mount Supply Air Temperature Sensor
The Supply Air Temperature (SAT) Sensor must be mounted a
minimum of 8” above the edge of the supply duct (additional distance
is preferred when possible). Locate the SAT Sensor in an area of the
discharge air duct where less air turbulence is expected. Avoid dead
air areas where representative discharge air temperatures may not
exist.
The plug on the SAT Sensor harness plugs directly onto the AHC
Board. Refer to the figure in Step 7, Table 14.
Note: Supply Air Temp Sensor (SAT) is used in Link Communicating
mode and is optional in 24 volt mode.
Note: Supply Air Temp Sensor (SAT) ships with SC360 System
Controller.
Note: Supply Air Sensor kit is BAYSENSC360.
Supply Air
Temperature
Sensor
8” Min.
Table 15. Low Voltage Maximum Wire Length
The Low Voltage Maximum Wire Length table
defines the size and combined total maximum
length of the low voltage wiring from the
outdoor unit, to the indoor unit, and to the
thermostat.
Note: The use of color coded low voltage wire
is recommended to simplify
connections between the outdoor unit,
the control, and the indoor unit.
Control Wire Communicating
WIRE SIZE MAX. WIRE LENGTH
18 AWG 500 FT. Combined
Control Wire 24 Volt
WIRE SIZE MAX. WIRE LENGTH
18 AWG 100 FT. Combined
EElleeccttrriiccaall LLooww VVoollttaaggee

Related product manuals