EasyManua.ls Logo

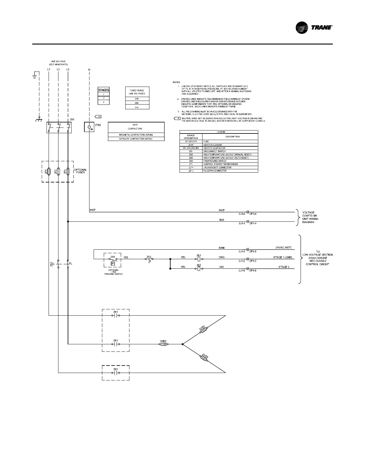
Trane Technologies VariTrane VCEF - Wiring Diagrams (Continued); Fan Powered, Three Phase, Wye, 2 Stages Wiring

Default Icon
64 pages
Print Icon
To Next Page IconTo Next Page
To Next Page IconTo Next Page
To Previous Page IconTo Previous Page
To Previous Page IconTo Previous Page
Loading...
VAV-SVX08U-EN
49
Figure 35. Fan powered, three phase, wye, 2 stages
WWiirriinngg DDiiaaggrraammss

Related product manuals