EasyManua.ls Logo

Trane 2MCC05-C - Page 31

Trane 2MCC05-C
80 pages
Print Icon
To Next Page IconTo Next Page
To Next Page IconTo Next Page
To Previous Page IconTo Previous Page
To Previous Page IconTo Previous Page
Loading...
MS-SVN056C-EN 31
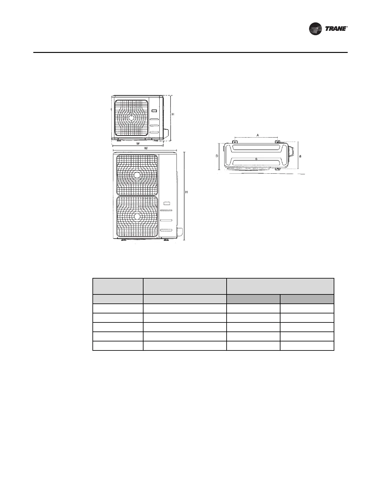
Outdoor Unit Installation
Unit sizes
Installation and service clearance
Length specifications
Outdoor unit dimensions
(mm)
Mounting dimensions
(mm) (inch)
Capacity H x W x D Distance A Distance B
12K 770 x 555 x 300 487 (19.17) 298 (11.73)
18K - 24K 845 x 702 x 363 540 (21.26) 350 (13.8)
36K 946 x 810 x 410 673 (26.5) 403 (15.87)
48K 900 x 1170 x 350 590 (23.2) 378 (14.88)
60K 952 x 1333 x 415 634 (24.96) 404 (15.9)

Related product manuals