EasyManua.ls Logo

Trane 80 - Field Wiring; Single Stage Heating Wiring; 2 Stage Heating Thermostat Wiring

Trane 80
16 pages
Print Icon
To Next Page IconTo Next Page
To Next Page IconTo Next Page
To Previous Page IconTo Previous Page
To Previous Page IconTo Previous Page
Loading...
12 Pub. No. 22-1682-05-0802 (EN)
TO 115 V 1 PH.,
60 HZ., POWER
SUPPLY PER
LOCAL CODES
HUM SEE
NOTE 5
EAC SEE
NOTE 5
Field
Wiring
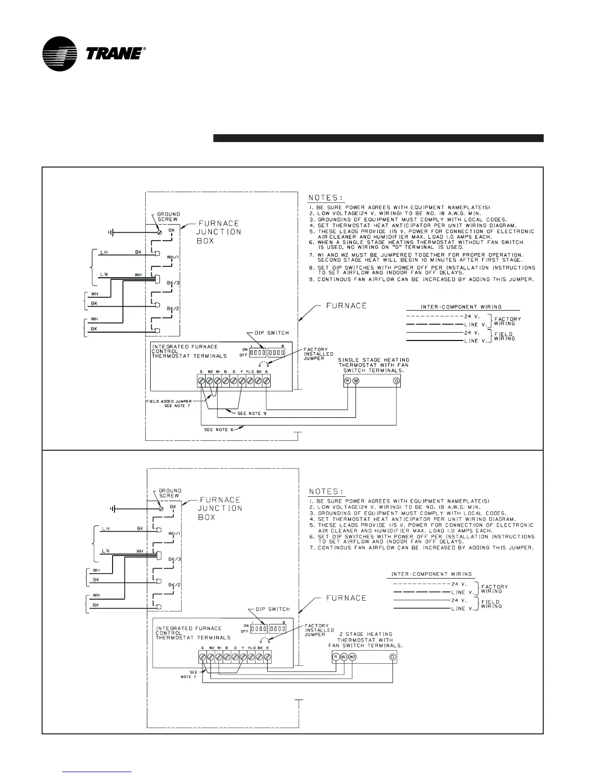
FIELD WIRING DIAGRAM FOR SINGLE STAGE HEATING
From Dwg. 21B341127 Rev. 0
From Dwg. 21B341126 Rev. 0
FIELD WIRING DIAGRAM FOR 2 STAGE HEATING THERMOSTAT
TO 115 V 1 PH.,
60 HZ., POWER
SUPPLY PER
LOCAL CODES
HUM SEE
NOTE 5
EAC SEE
NOTE 5

Related product manuals