EasyManua.ls Logo

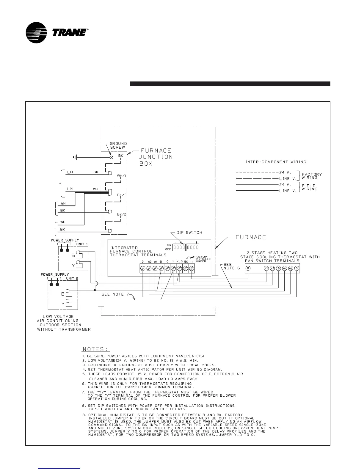
Trane 80 - Field Wiring (Continued); 2 Stage Heating Two Stage Cooling Wiring

Trane 80
16 pages
Print Icon
To Next Page IconTo Next Page
To Next Page IconTo Next Page
To Previous Page IconTo Previous Page
To Previous Page IconTo Previous Page
Loading...
14 Pub. No. 22-1682-05-0802 (EN)
Field
Wiring
FIELD WIRING DIAGRAM FOR 2 STAGE HEATING TWO STAGE COOLING
(OUTDOOR SECTION WITHOUT TRANSFORMER)
From Dwg. 21B341128 Rev. 0
TO 115 V 1 PH.,
60 HZ., POWER
SUPPLY PER
LOCAL CODES
HUM SEE
NOTE 5
EAC SEE
NOTE 5

Related product manuals