EasyManua.ls Logo

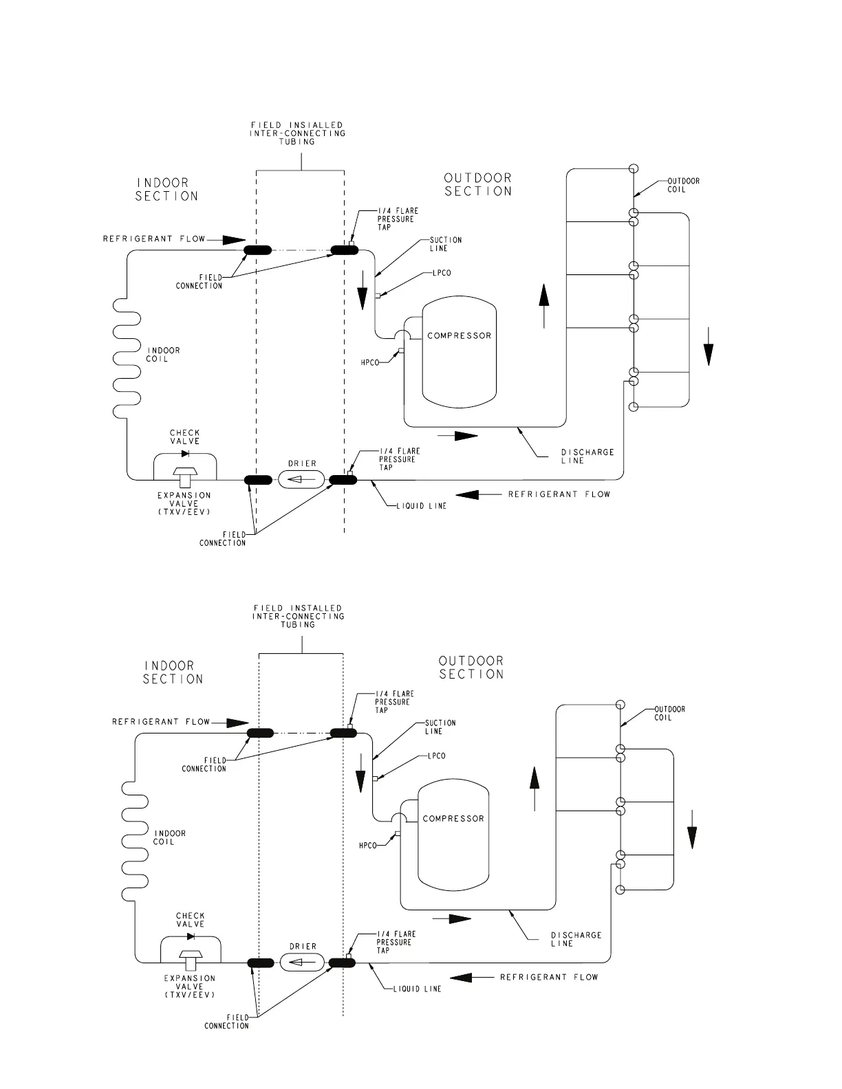
Trane A5AC5018A - Refrigeration Circuit Diagrams by Model; Refrigeration Circuits for 018, 030, 042 Models; Refrigeration Circuits for 024 & 036 Models

Trane A5AC5018A
28 pages
Print Icon
To Next Page IconTo Next Page
To Next Page IconTo Next Page
To Previous Page IconTo Previous Page
To Previous Page IconTo Previous Page
Loading...
PRINTED FROM D157394P01
024 & 036 Models
PRINTED FROM D158514P01
Section 16. Refrigeration Circuits
018, 030 & 042 Models
20
88-A5AC5001-1A-EN

Related product manuals