EasyManua.ls Logo

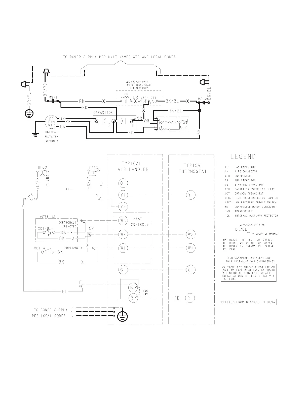
Trane A5AC5018A - Wiring Diagrams for 060 Models

Trane A5AC5018A
28 pages
Print Icon
To Next Page IconTo Next Page
To Next Page IconTo Next Page
To Previous Page IconTo Previous Page
To Previous Page IconTo Previous Page
Loading...
060 Models
88-A5AC5001-1A-EN
24

Related product manuals