EasyManua.ls Logo

Trane ACYSTAT220AA - LCD Control Series: Cooling & Heating

Trane ACYSTAT220AA
34 pages
Print Icon
To Next Page IconTo Next Page
To Next Page IconTo Next Page
To Previous Page IconTo Previous Page
To Previous Page IconTo Previous Page
Loading...
28
ACYSTAT-IOM-EN
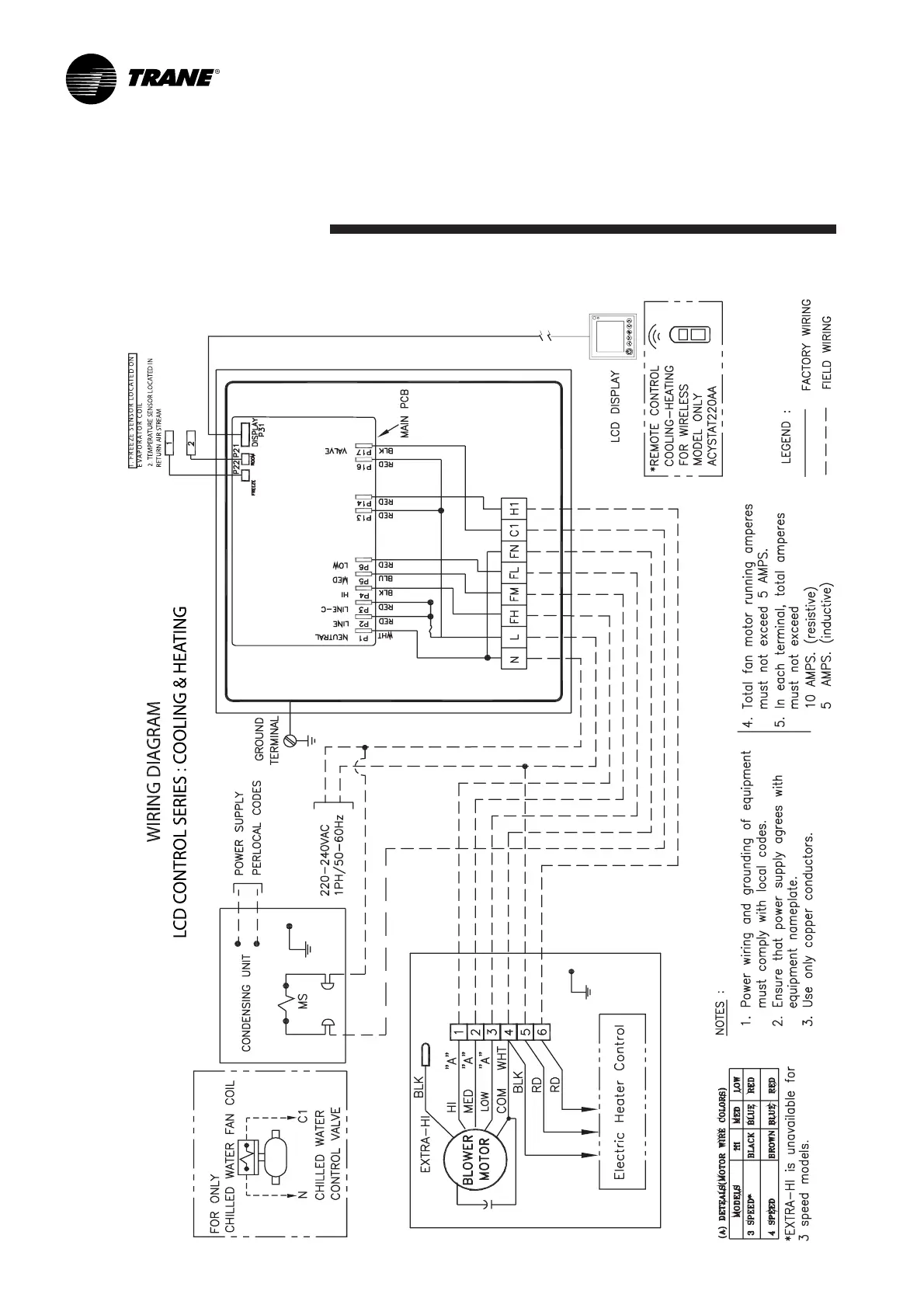
Wiring diagram

Related product manuals