EasyManua.ls Logo

Trane CCAF - Water Piping System

Trane CCAF
40 pages
Print Icon
To Next Page IconTo Next Page
To Next Page IconTo Next Page
To Previous Page IconTo Previous Page
To Previous Page IconTo Previous Page
Loading...
29
CG-PRC012-EN
Electrical Data
and Connections
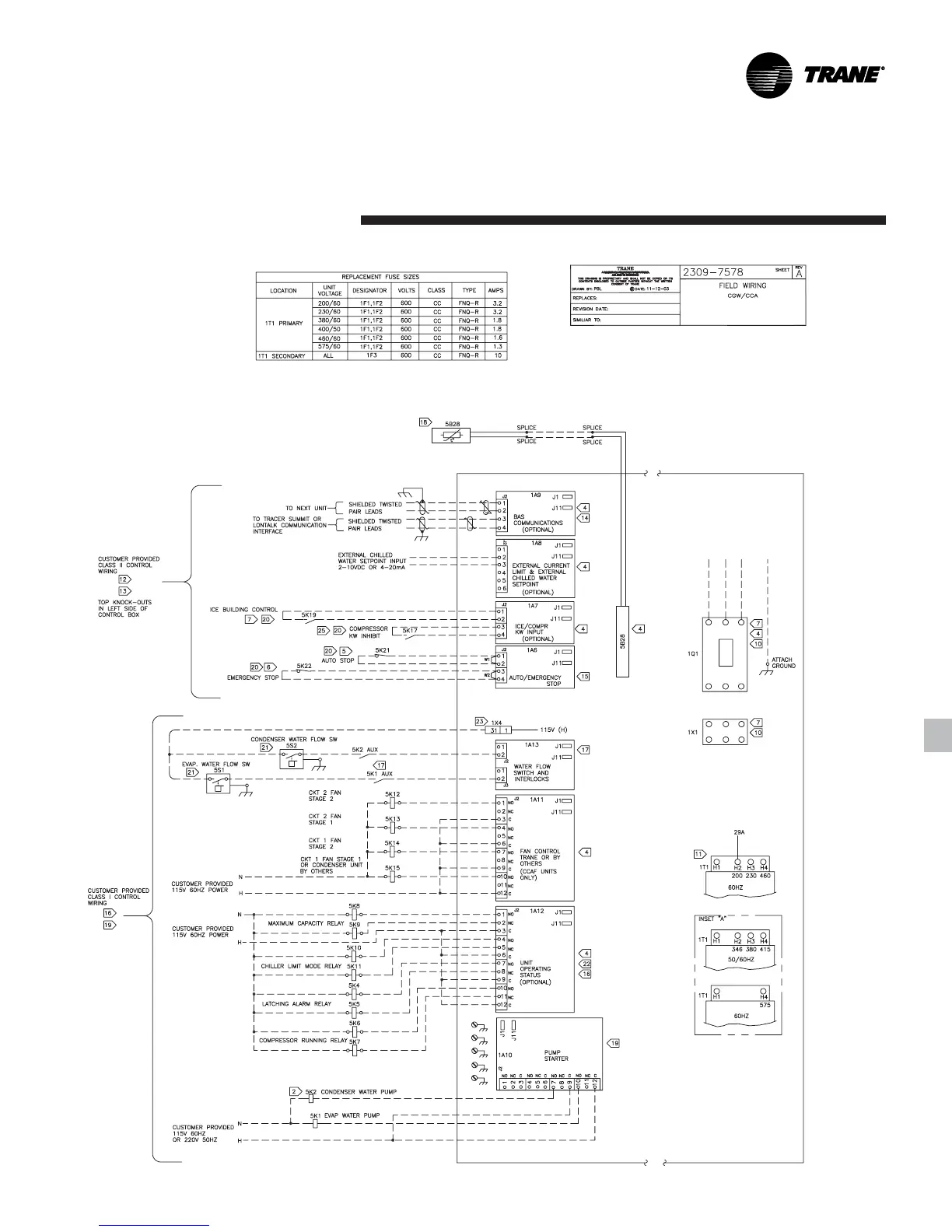
Typical Wiring
Diagram

Other manuals for Trane CCAF

Related product manuals