EasyManua.ls Logo

Trane CCAF - Dimensional Data

Trane CCAF
40 pages
Print Icon
To Next Page IconTo Next Page
To Next Page IconTo Next Page
To Previous Page IconTo Previous Page
To Previous Page IconTo Previous Page
Loading...
CG-PRC012-EN32
Dimensional
Data
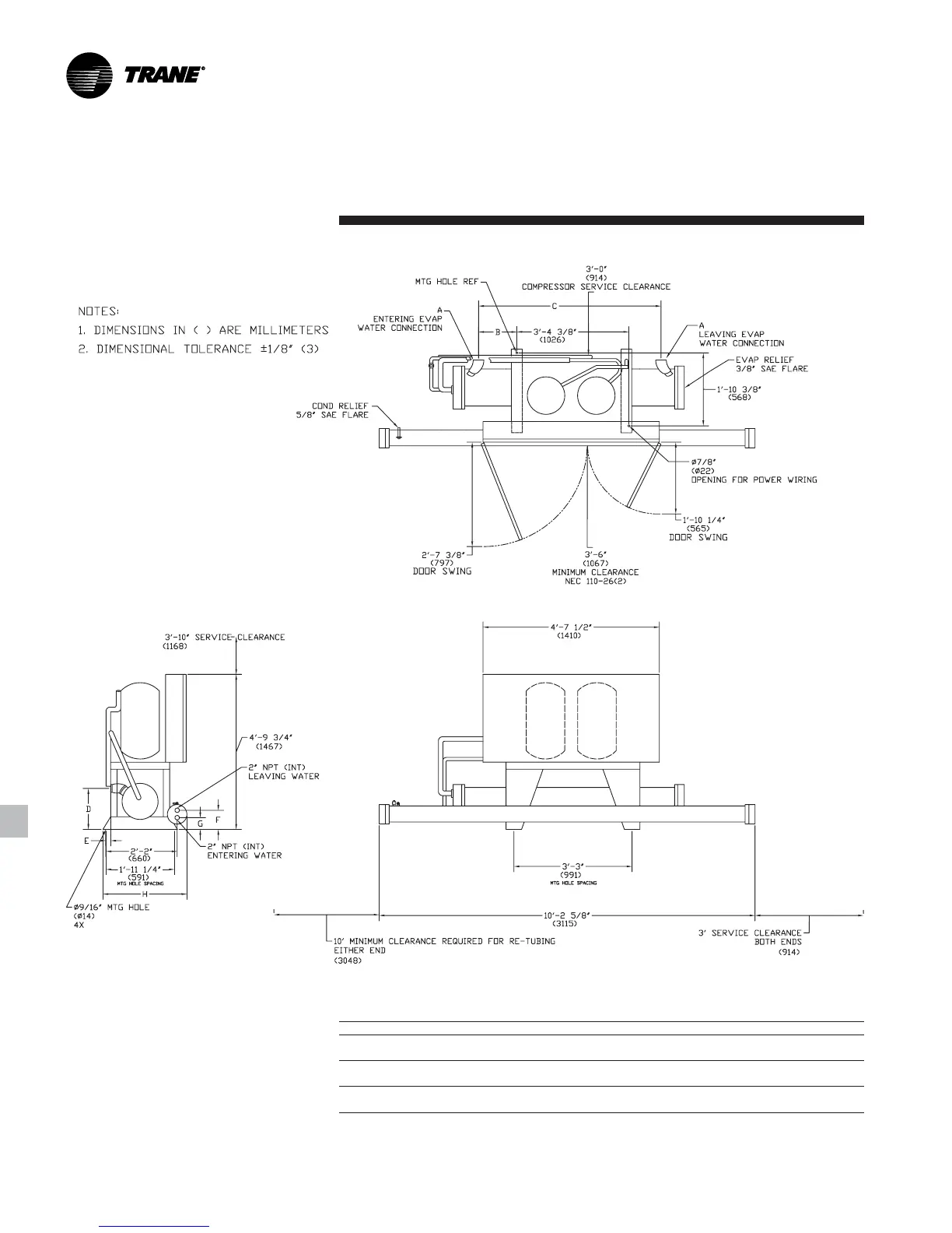
Size A B C D E F G H
20 Ton 2" 8 1/2" 4'-8" 1'-3 3/8" 4 1/8" 8 5/8" 5 5/8" 2' 7 3/8"
(51) (216) (1423) (391) (105) (218) (143) (797)
25 Ton 2" 8 1/2" 4'-8" 1'-3 3/8" 4 1/8" 8 5/8" 5 5/8" 2' 7 3/8"
(51) (216) (1423) (391) (105) (218) (143) (797)
30 Ton 2 1/2" 7 3/4" 4'-6 1/2" 1'-5 3/8" 2 1/4" 12" 8" 2' 8 3/16"
(64) (197) (1384) (441) (57) (305) (203) (818)
Notes:
1. Dimensions in ( ) are in millimeters.
2. Dimensional tolerance ± 1/4” (6.4).
3. These dimensions for left hand condenser connections.
CGWF 20-30 Ton

Other manuals for Trane CCAF

Related product manuals