EasyManua.ls Logo

Trane CCAF - Page 35

Trane CCAF
40 pages
Print Icon
To Next Page IconTo Next Page
To Next Page IconTo Next Page
To Previous Page IconTo Previous Page
To Previous Page IconTo Previous Page
Loading...
35
CG-PRC012-EN
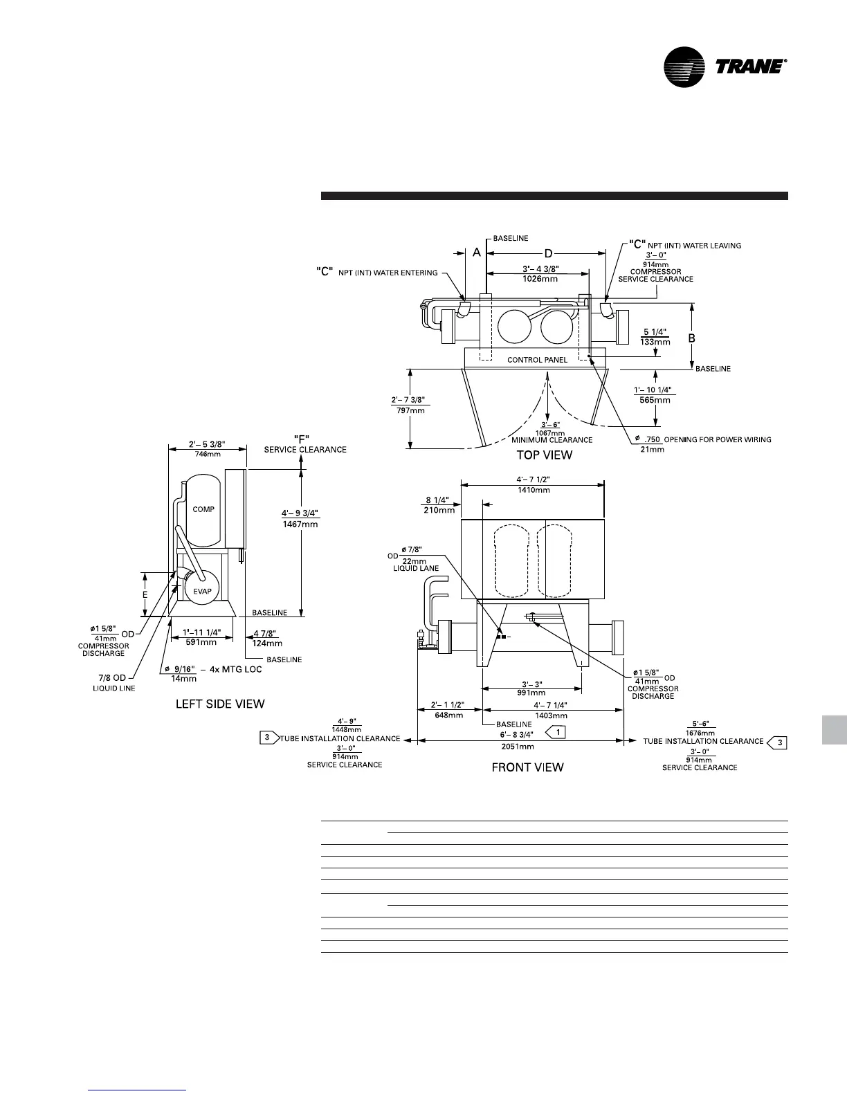
English Dimensions
Unit Size A B C D E F
20 Ton 8 1/2” 3’-11 1/2” 2” 2’-0” 1’-3 1/2” 3’-3”
25 Ton 8 1/2” 3’-11 1/2” 2” 1’-11 3/4” 1’-3 1/2” 3’-10
30 Ton 7 3/4” 3’-10 3/4” 2 1/2” 2’-1 7/8” 1’-5 3/8” 3’-10”
Metric Dimensions (mm)
Unit Size A B C D E F
20 Ton 216 1207 51 610 394 1041
25 Ton 216 1207 51 603 394 1041
30 Ton 197 1187 64 657 441 1168
Notes:
1. Add 3/4” (19 mm) for units with insulation.
2. Dimensional tolerance ± 1/4” (6.4).
3. Tube installation at either end of evaporator.
CCAF 20-30 Ton
Dimensional
Data

Other manuals for Trane CCAF

Related product manuals