EasyManua.ls Logo

Trane CH530 - Page 19

Trane CH530
60 pages
Print Icon
To Next Page IconTo Next Page
To Next Page IconTo Next Page
To Previous Page IconTo Previous Page
To Previous Page IconTo Previous Page
Loading...
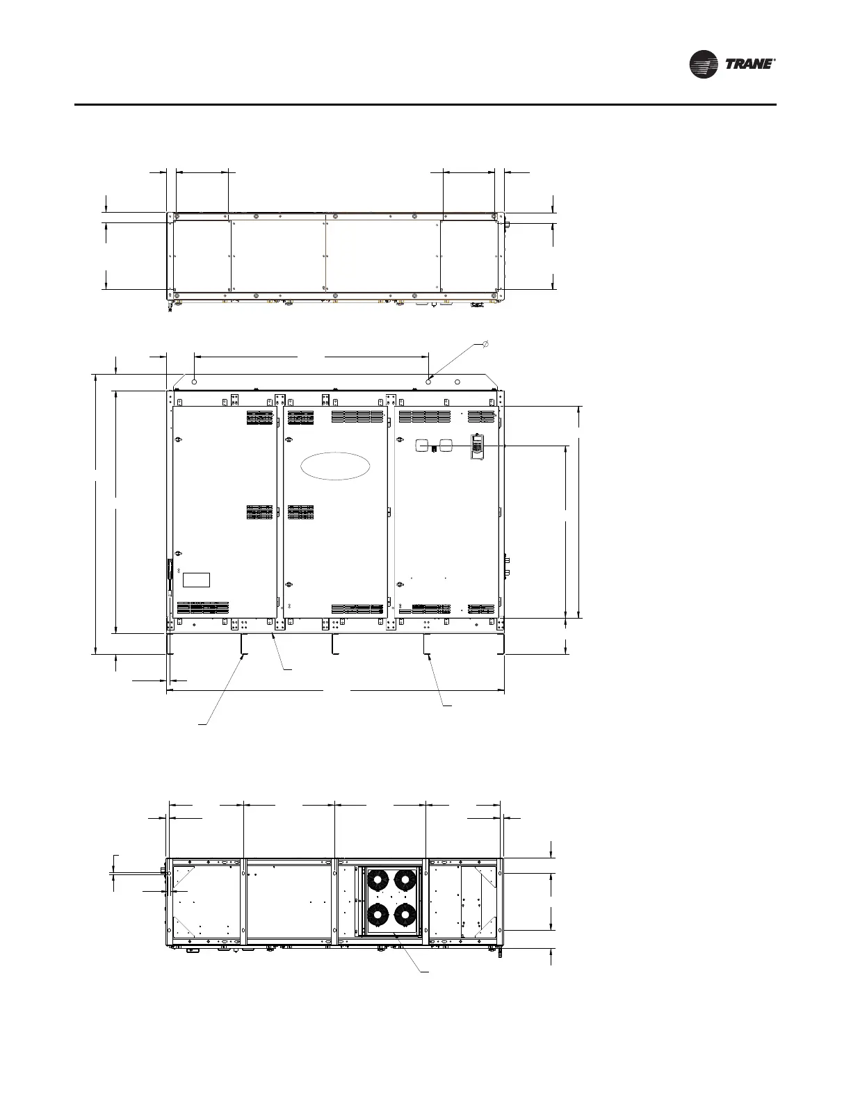
Figure 9. Drive cabinet dimensions: Frame 4 (dimensions in inches)
(a)
Drive and Cabinet
AFDK-SVU01C-EN 19
(a)Material courtesy of Rockwell.
6.00
81.11
8.02 67.77
15.00
OUTPUT WIRING
ACCESS
19.25
OUTPUT WIRING
ACCESS
3.03
2.75
3.05
19.25
INPUT WIRING
ACCESS
15.00
INPUT WIRING
ACCESS
2.75
97.79
0.98
4.75
70.36
10.45
50.00
61.46
FLOOR MOUNTING RAILS (5X)
BRACKETS SHIPPED LOOSE
INSIDE CABINET
1.38 LIFTING HOLES
AIR FILTER
NOT VISIBLE FROM FRONT
HARDWARE FOR MNTG RAILS
SUPPLIED BY CUSTOMER
============================
1/2-13 HHCS X 1.50 LG (10X)
1/2" FENDER WASHER (20X)
1/2" SPLIT LOCK WASHER (10X)
1/2-13 HEX NUT (10X)
DRIVE CABINET ASSEMBLY OUTLINE
SHOWN AS FIELD INSTALLED
Top View
Front View
4.40
16.50
5.25 REF
1.000
21.4726.4326.4321.47
1.000
0.63
TYP
0.50
TYP
FILTER INSTALLED
Bottom View

Related product manuals