EasyManua.ls Logo

Trane EBC060 - Page 11

Trane EBC060
36 pages
Print Icon
To Next Page IconTo Next Page
To Next Page IconTo Next Page
To Previous Page IconTo Previous Page
To Previous Page IconTo Previous Page
Loading...
RT-SVX057F-EN
11
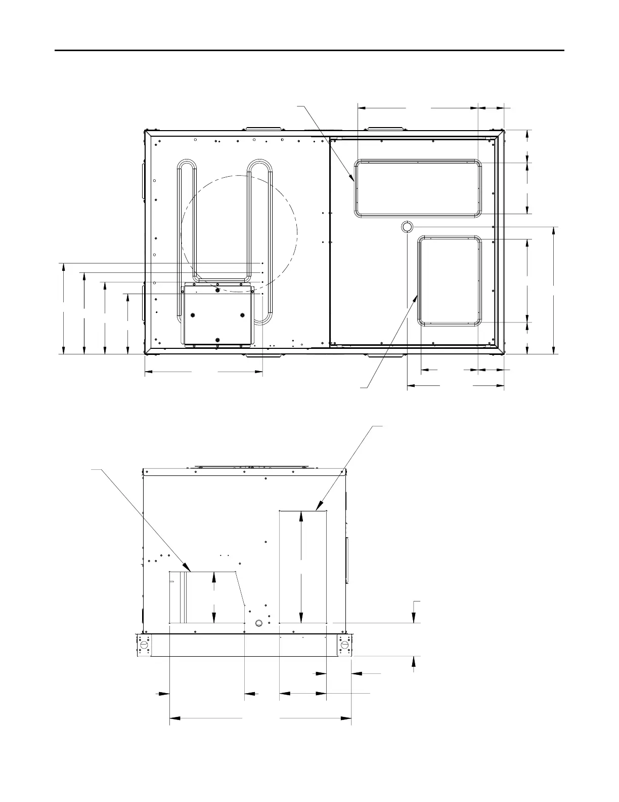
Figure 4. Cooling with optional electrical heat and electric/electric units —bottom view
RETURN
SUPPLY
25-1/8”
17-3/8”
15-3/8”
20-11/16”
12-1/8”
5-19/32”
6-25/32”
17-3/4”
27-1/8”
10-7/8”
7-1/32”
5-19/32”
25-5/8”
12-27/32”
19-3/8”
Figure 5. Cooling with optional electrical heat and electric/electric units back view (horizontal configuration)
SUPPLY
RETURN
11.478”
25.125”
7.393”
5.592”
10.500”
40.717”
16.750”
DDiimmeennssiioonnaall DDaattaa

Table of Contents

Related product manuals