EasyManua.ls Logo

Trane EXWA - Dimensions;Weights

Trane EXWA
31 pages
Print Icon
To Next Page IconTo Next Page
To Next Page IconTo Next Page
To Previous Page IconTo Previous Page
To Previous Page IconTo Previous Page
Loading...
6 WSHP-SVX02A-EN
Table 1: Unit weights
Size
Shipping
Weight
with pallet (lb)
Shipping
Weight
w/o pallet (lb)
024 163 153
036 183 173
042 203 193
048 214 204
060 244 234
072 277 267
240 1222 1156
WARNING
Improper Unit Lift!
Test lift unit approximately 24 inches to verify proper
center of gravity lift point. To avoid dropping of unit,
reposition lifting point if unit is not level. Failure to
properly lift unit could result in death or serious injury
or possible equipment or property-only damage.
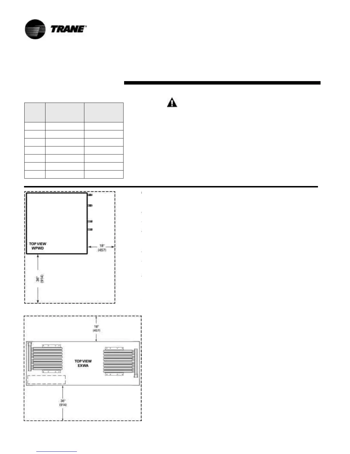
Dimensions/Weights/
Clearance
Figure 1: Mechanical clearances
Unit Location and Clearances
Locate the unit in an indoor area. The
ambient temperature surrounding the
unit must not be less than 45°F. Do
not locate the unit in areas subject to
freezing.
Attention should be given to service
clearance and technician safety. The
unit access panels may be easily re-
moved. There must be enough space
for service personnel to perform main-
tenance or repair. Provide sufficient
room to make water, and electrical
connection(s). Local and national
codes should be followed in providing
electrical power connections. See Fig-
ure 1 for mechanical clearances.

Related product manuals