EasyManua.ls Logo

Trane FF - Site Preparation

Trane FF
80 pages
Print Icon
To Next Page IconTo Next Page
To Next Page IconTo Next Page
To Previous Page IconTo Previous Page
To Previous Page IconTo Previous Page
Loading...
12 UNT-SVX07A-EN
Installation
dimensions
& weights
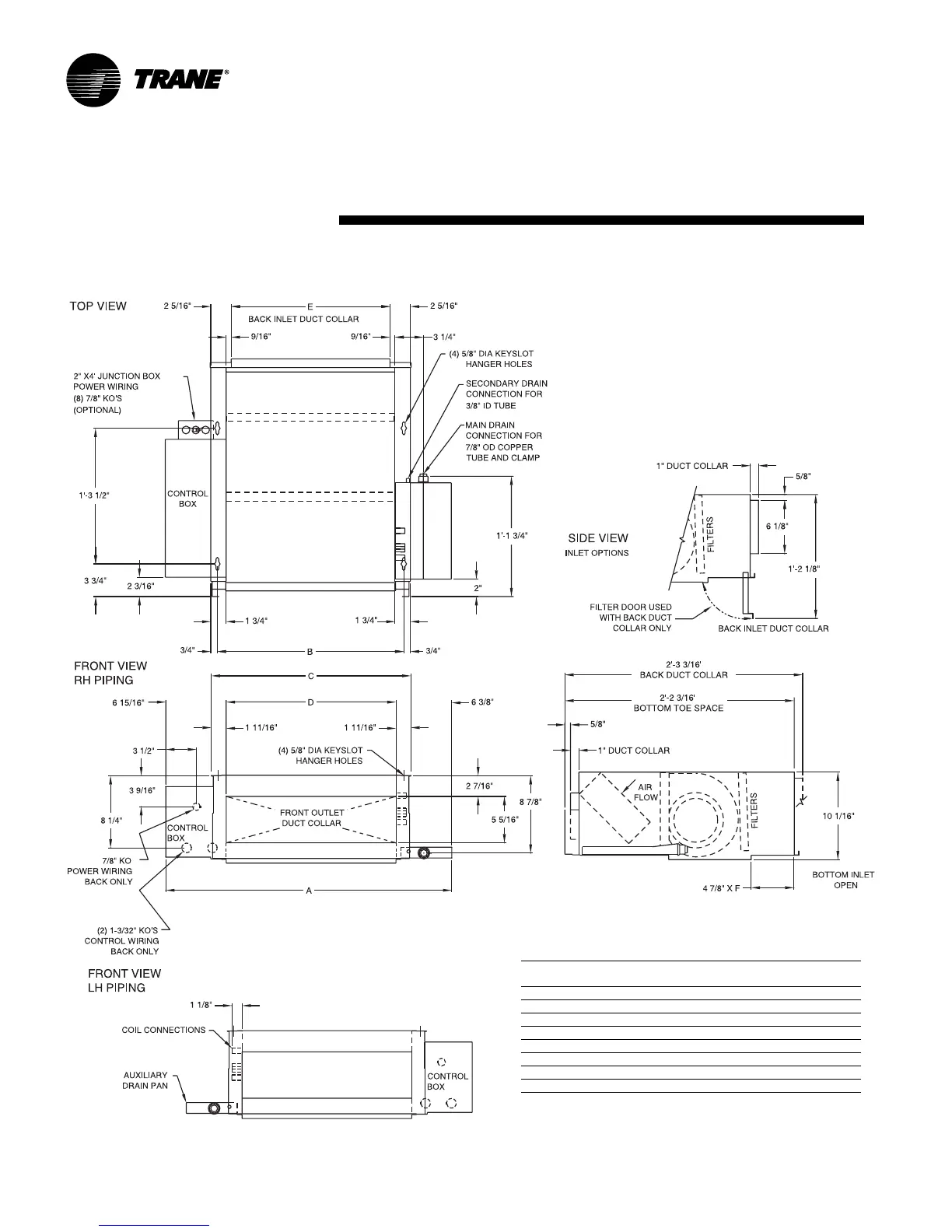
Horizontal Concealed Unit Dimensions, in-lbs.
unit
size 02-03 04 06 08 10-12
A 2’-8
11
/16 3’-1
11
/16 3’-11
3
/16 4’-7
11
/16 6’-2
11
/16
B 1’-9
5
/16 2’-2
5
/16 2’-11
13
/16 3’-8
5
/16 5’-3
5
/16
C 1’-10
13
/16 2’-3
13
/16 3’-1
5
/16 3’-9
13
/16 5’-4
13
/16
D 1’-7
3
/8 2’-0
3
/8 2’-9
7
/8 3’-6
3
/8 5’-1
3
/8
E 1’-6
1
/8 1’-11
1
/8 2’-8
5
/8 3’-5
1
/8 5’-0
1
/8
F 1’-7
5
/16 2’-0
5
/16 2’-9
13
/16 3’-6
5
/16 5’-1
5
/16
operating weight 81 109 139 147 200
shipping weight 68 96 123 131 182
Notes:
1. Coil connections are always on the drain pan side and opposite the control
box.
2. Coil connections are
5
/8” O.D. sweat. See pages 21-22 for locations.
3. All duct collar dimensions are to the outside of the collar.
4. See pages 23-24 for fresh air opening dimensions.
Horizontal Concealed, Model C

Other manuals for Trane FF

Related product manuals