EasyManua.ls Logo

Trane FF - Dimensions and Weights; Service Clearances

Trane FF
80 pages
Print Icon
To Next Page IconTo Next Page
To Next Page IconTo Next Page
To Previous Page IconTo Previous Page
To Previous Page IconTo Previous Page
Loading...
UNT-SVX07A-EN 13
Installation
dimensions
& weights
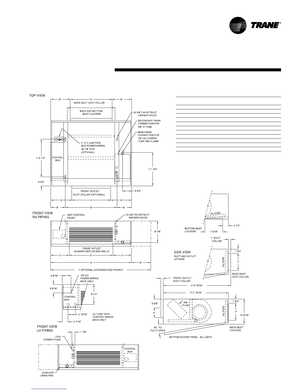
Horizontal Cabinet Unit Dimensions, in-lbs.
unit
size 02-03 04 06 08 10-12
A 2’-9
5
/16 3’-2
5
/16 3’-11
3
/16 4’-8
5
/16 6’-3
5
/16
B 1’-9
5
/16 2’-2
5
/16 2’-11
13
/16 3’-8
5
/16 5’-3
5
/16
C7
5
/8”7
1
/8”8
7
/8”7
1
/8”7
5
/8
D 1’-6” 2’-0” 2’-6” 3’-6” 5’-0”
E 1’-5
1
/4 1’-10
1
/4 2’-7
3
/4 3’-4
1
/4 4’-11
1
/4
F 3’-5
5
/16 3’-10
5
/16 4’-7
3
/16 5’-4
5
/16 6’-11
5
/16
G8
5
/8”8
1
/8”9
7
/8”8
1
/8”8
5
/8
H 1’ -4” 1’-10” 2’-4” 3’-4” 4’-10”
J 1’-7
3
/4 1’-11
3
/4 2’-7
3
/4 3’-3
3
/4 4’-11
3
/4
operating weight 97 125 155 164 218
shipping weight 84 112 139 148 200
Notes:
1. Coil connections are always on the drain pan side and opposite the control
box.
2. Coil connections are
5
/8” O.D. sweat. See pages 21-22 for locations.
3. All duct collar dimensions are to the outside of the collar.
4. See pages 23-24 for fresh air opening dimensions.
Horizontal Cabinet, Model D

Other manuals for Trane FF

Related product manuals