EasyManua.ls Logo

Trane GRAA - Fuel and Electrical Safety

Trane GRAA
14 pages
Print Icon
To Next Page IconTo Next Page
To Next Page IconTo Next Page
To Previous Page IconTo Previous Page
To Previous Page IconTo Previous Page
Loading...
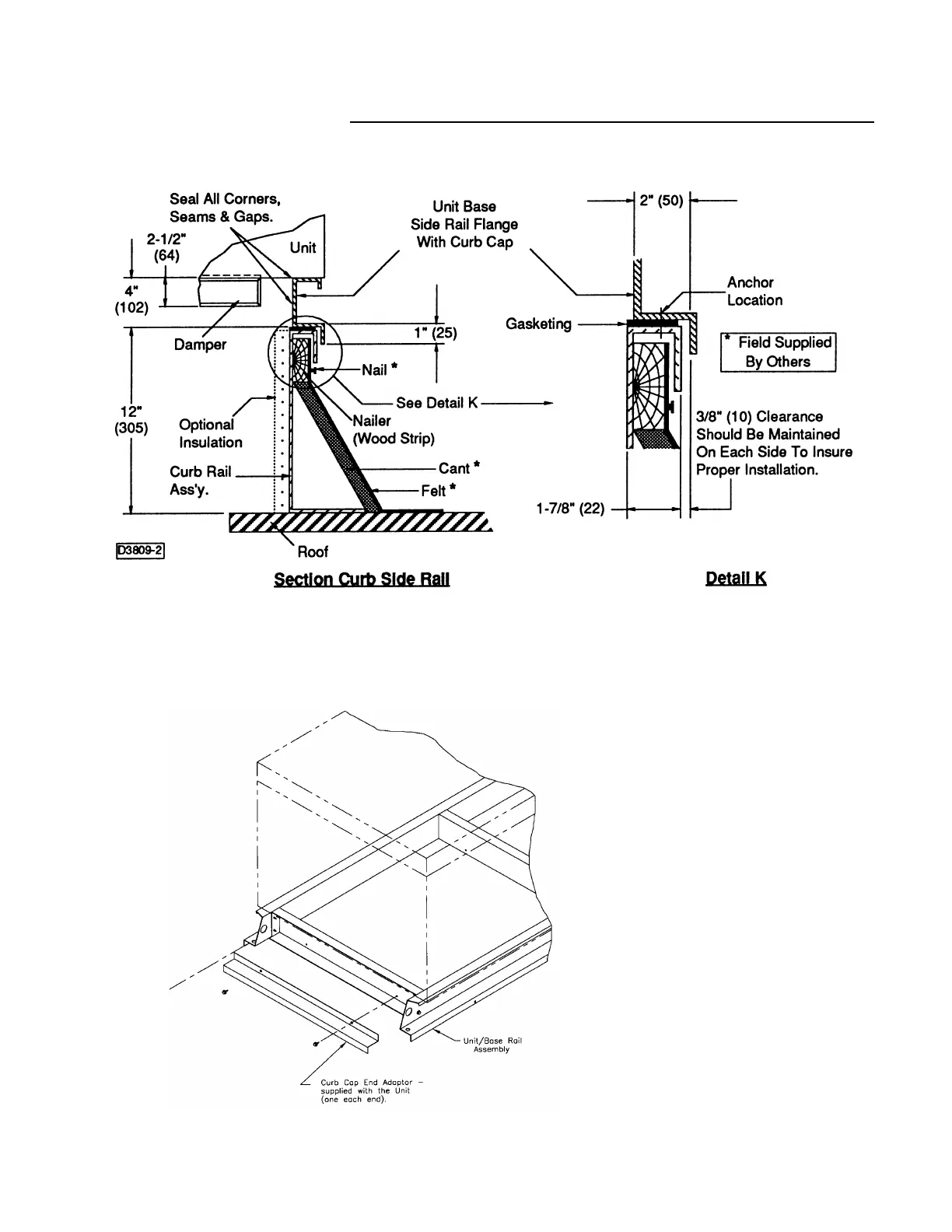
Figure 8 - Unit/Curb Rail Assembly
Figure 7 - Curb Specifications
For Field Installations: These
Cross Brace/Curb Adapters (two
adapters ship with each rooftop
unit) must be repositioned when
the unit is mounted on a curb or
platform (one for each end). Simply
remove the screws, turn the piece
over (end for end) and secure in
place using the holes/hardware
provided. All joints and seams
must be sealed completely to
prevent leaks.
8 GRAA-IN-1

Other manuals for Trane GRAA

Related product manuals