EasyManua.ls Logo

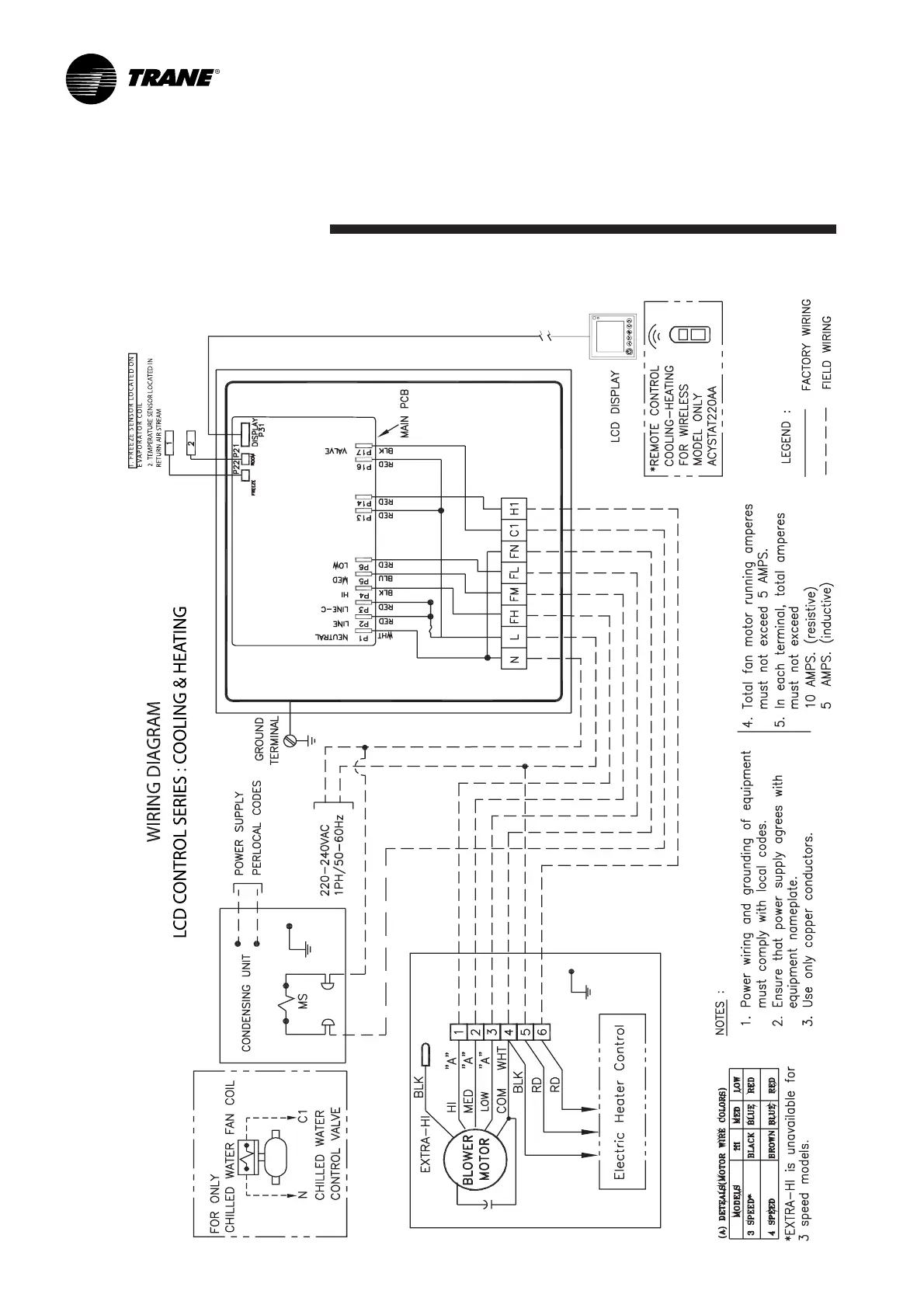
Trane LCD Control Series - Wiring Diagram: LCD Control Series (Cooling & Heating)

Trane LCD Control Series
34 pages
Print Icon
To Next Page IconTo Next Page
To Next Page IconTo Next Page
To Previous Page IconTo Previous Page
To Previous Page IconTo Previous Page
Loading...
28
ACYSTAT-IOM-EN
Wiring diagram

Related product manuals