EasyManua.ls Logo

Trane RTAA-130 - Page 65

Trane RTAA-130
140 pages
Print Icon
To Next Page IconTo Next Page
To Next Page IconTo Next Page
To Previous Page IconTo Previous Page
To Previous Page IconTo Previous Page
Loading...
65
RTAA-IOM-3
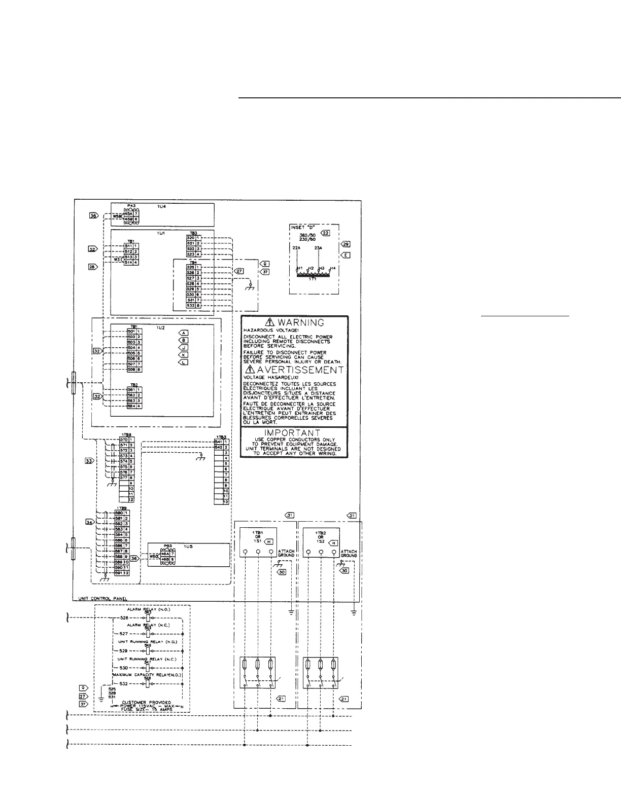
(Continued from Previous Page)
See Notes on Page 61

Table of Contents

Related product manuals