EasyManua.ls Logo

Trane RTAA-130 - Page 78

Trane RTAA-130
140 pages
Print Icon
To Next Page IconTo Next Page
To Next Page IconTo Next Page
To Previous Page IconTo Previous Page
To Previous Page IconTo Previous Page
Loading...
78
RTAA-IOM-3
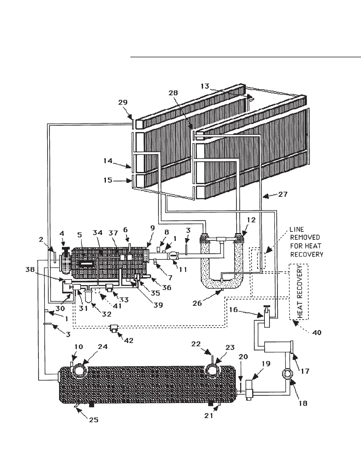
Figure 40
Refrigeration System and
Control Components
Single Circuit
(Continued on Next Page)

Table of Contents

Related product manuals