EasyManua.ls Logo

Trane RTAA-140 - Page 28

Trane RTAA-140
140 pages
Print Icon
To Next Page IconTo Next Page
To Next Page IconTo Next Page
To Previous Page IconTo Previous Page
To Previous Page IconTo Previous Page
Loading...
28
RTAA-IOM-3
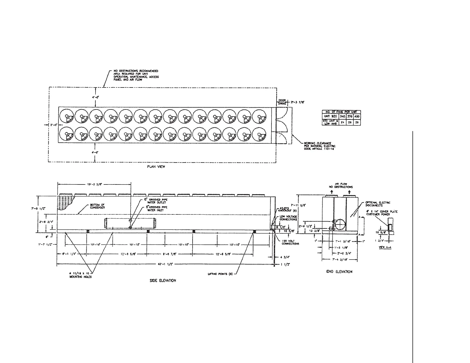
Figure 11
Dimensions and Clearances for
RTAA Packaged Unit – 340 to 400 Ton
RTAA-SU-1002C

Table of Contents

Related product manuals