EasyManua.ls Logo

Trane RTAA-140 - Page 52

Trane RTAA-140
140 pages
Print Icon
To Next Page IconTo Next Page
To Next Page IconTo Next Page
To Previous Page IconTo Previous Page
To Previous Page IconTo Previous Page
Loading...
52
RTAA-IOM-3
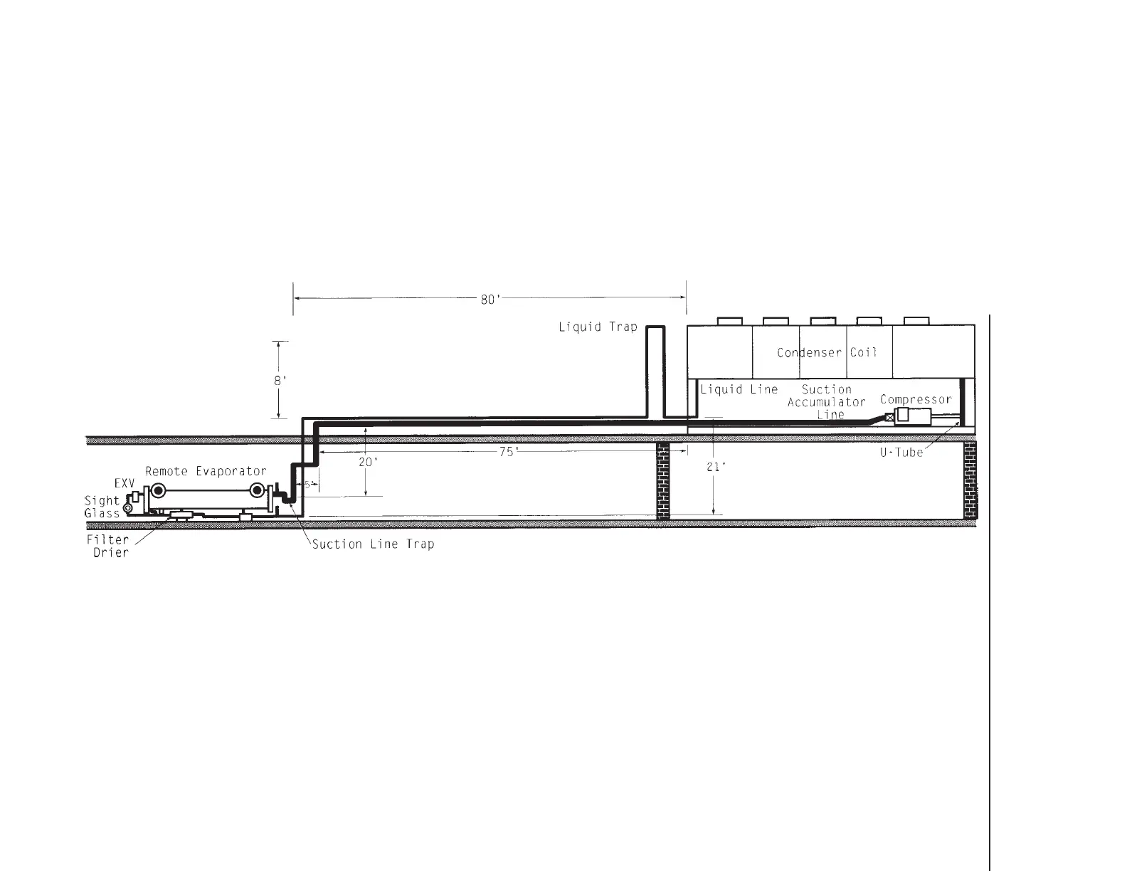
Figure 31
Remote Evaporator Piping Example

Table of Contents

Related product manuals