EasyManua.ls Logo

Trane RTAA-90 - Top View; Side View

Trane RTAA-90
178 pages
Print Icon
To Next Page IconTo Next Page
To Next Page IconTo Next Page
To Previous Page IconTo Previous Page
To Previous Page IconTo Previous Page
Loading...
RTAA-SVX01A-EN 43
Installation — Remote Evaporator
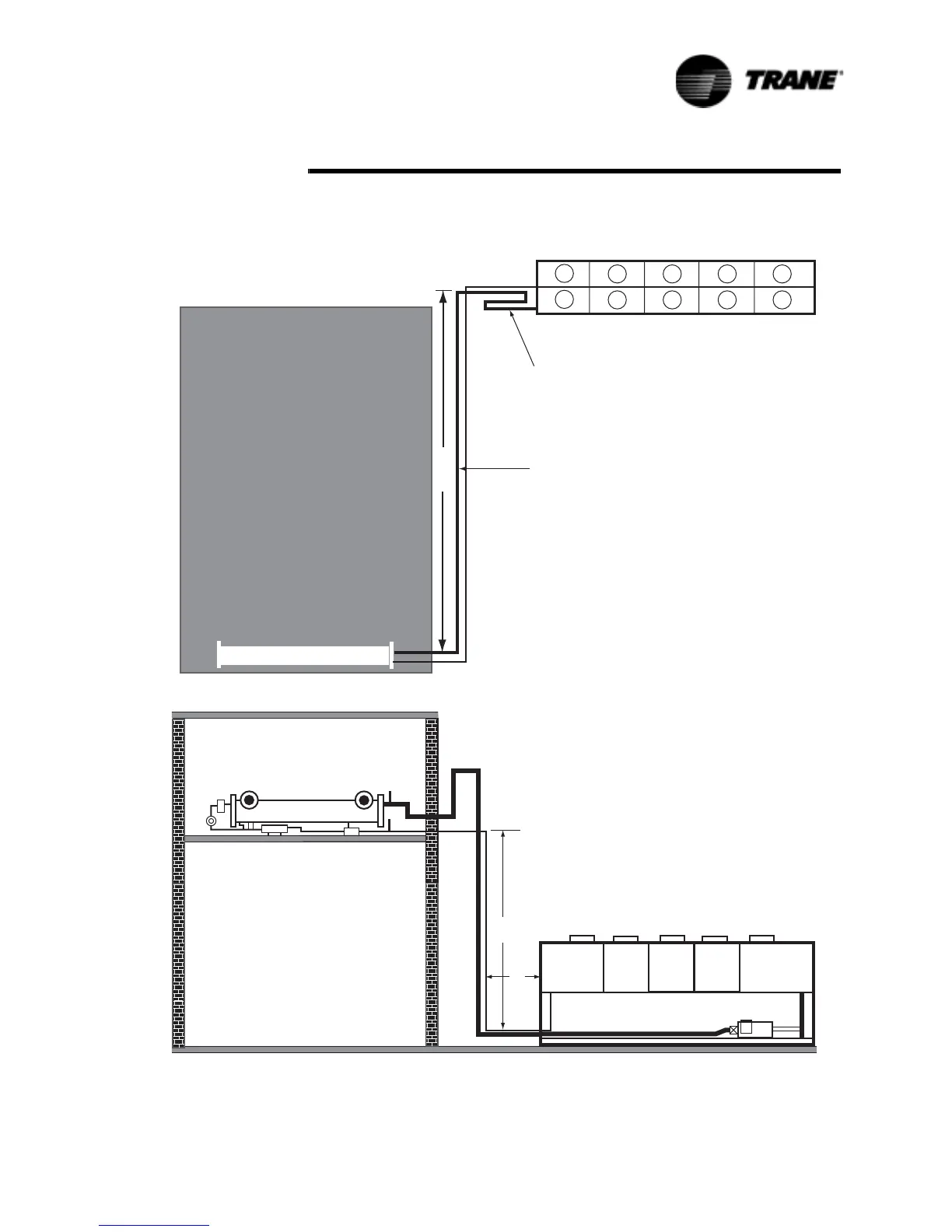
Figure 23 Suction Accumulator Sizing Example
&RQGHQVHU&RLO
/LTXLG/LQH
6XFWLRQ/LQH
&RPSUHVVRU
6,'(9,(:
7239,(:
&RQGHQVHU&RLO
5HPRWH(YDSRUDWRU
¶´

µ
IHHWRIKRUL]RQWDOVXFWLRQ
DFFXPXODWRUDWDKHLJKWQRWWR
H[FHHGLQFKHVDERYHWKHVXFWLRQ
OLQHFRQQHFWLQJSRLQWV
IHHWKRUL]RQWDOUXQDWWKHVDPH
HOHYDWLRQDVWKHUHPRWHHYDSRUDWRU
2XWGRRUFRQGHQVLQJXQLW¶V
HOHYDWLRQLVIHHWORZHUWKDQ
WKDWRIHYDSRUDWRUIHHWKRUL]RQWDO
UXQDWWKHVDPHHOHYDWLRQDVWKH
RXWGRRUFRQGHQVLQJXQLW

Table of Contents

Related product manuals