EasyManua.ls Logo

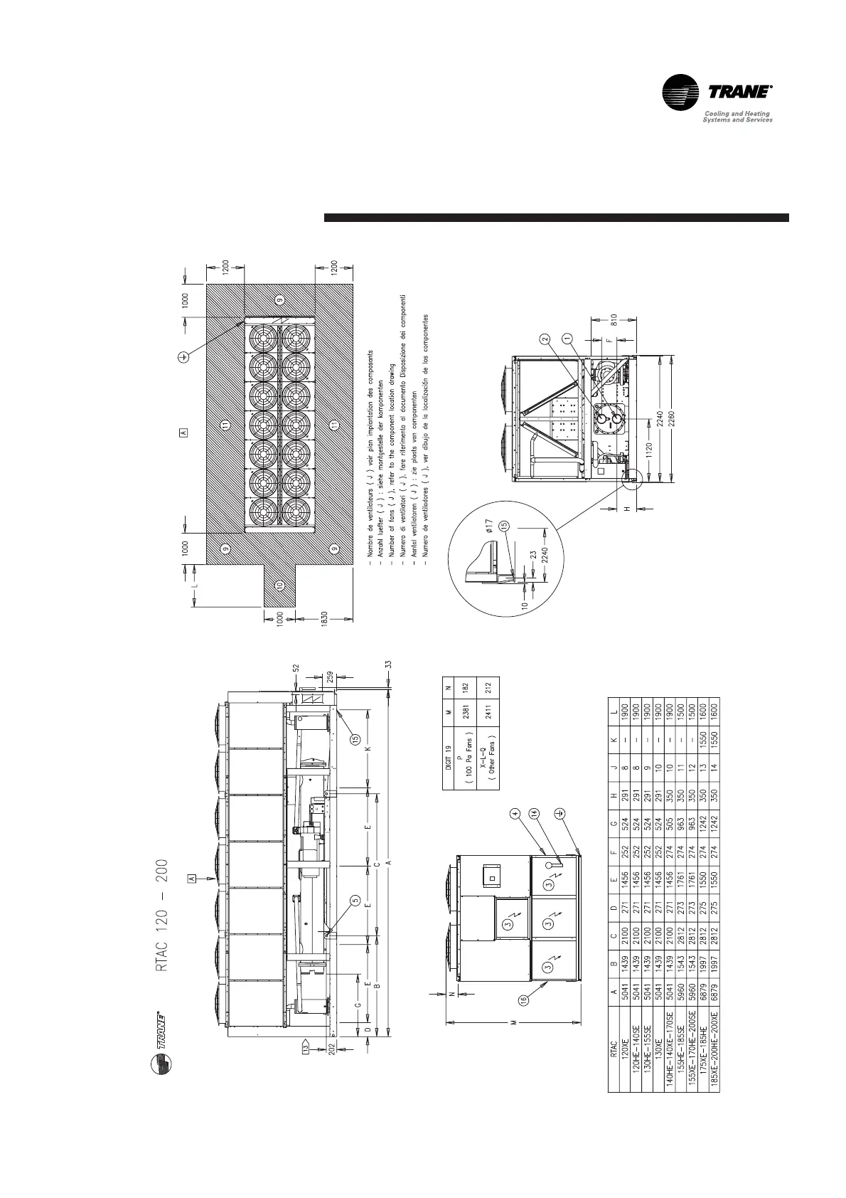
Trane RTAC 130 - Dimensional Data

Trane RTAC 130
76 pages
Print Icon
To Next Page IconTo Next Page
To Next Page IconTo Next Page
To Previous Page IconTo Previous Page
To Previous Page IconTo Previous Page
Loading...
23
RLC-SVX02G-E4
Dimensional Data

Table of Contents

Related product manuals