EasyManua.ls Logo

Trane RTAC 150 Series - Field Wiring Layout and Requirements

Trane RTAC 150 Series
138 pages
Print Icon
To Next Page IconTo Next Page
To Next Page IconTo Next Page
To Previous Page IconTo Previous Page
To Previous Page IconTo Previous Page
Loading...
133 RTAC-SVX002A-EN
REV
SHALL NOT BE COPIED OR ITS
THIS DRAWING IS PROPRIETARY AND
CONSENT OF THE TRANE COMPANY
PARTIES WITHOUT THE WRITTEN
CONTENTS DISCLOSED TO OUTSIDE
AMERICAN STANDARD INC.
THE TRANE COMPANY
AUTOCAD
A DIVISION OF
SIMILAR TO
REPLACES
REVISION DATE
DRAWN BY
DATE
2309-2222
E
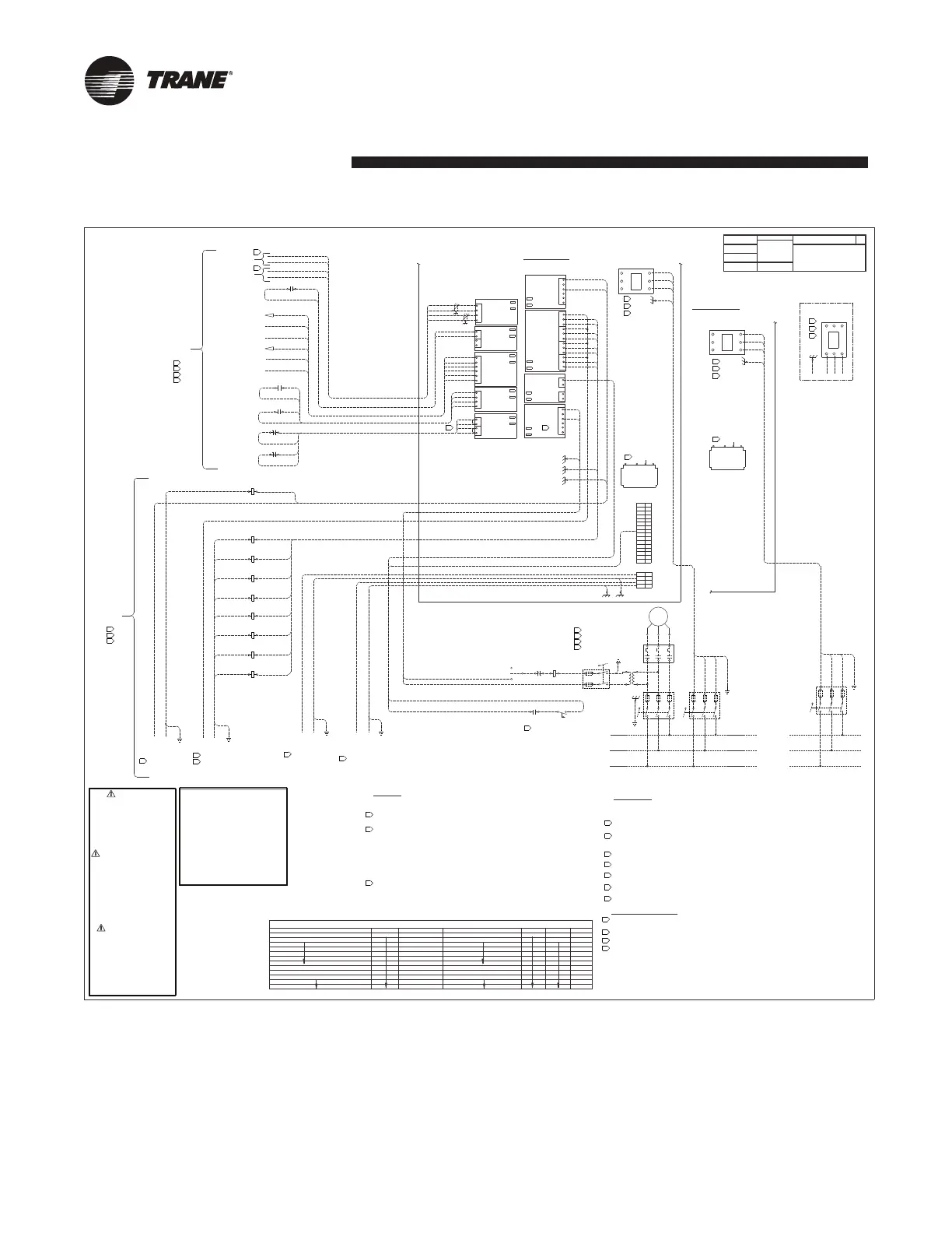
FIELD WIRING
LARGE AIR COOLED UNITS
DUAL SOURCE POWER
3 OR 4 COMPRESSORS
PBL
11-27-00
4-6-01
1CB1
or
1TB1
or
1SW1
L1
L2
L3
ATTACH
GROUND
GROUND
ATTACH
2SW1
2TB1
2CB1
or
or
L3
L2
L1
CONTROL PANEL 2
415V
380V
2T1
H1
H2
400V
H3
H4
13
626A
626B
4
4
1
2
3
4
5
6
7
8
9
10
11
12
13
14
15
16
1
4
3
2
1
3
2
J2
4
1
2
J2
5
4
1
2
J2
3
6 4
3
1
2
J2
1
C
J2
4
2
3
NO
NC
C
75 6
NO
NC
C
11
NC
10
98
NO
NC
C
12
NO
6532
1 4
J2
J11J1 J11J1
J1
1J1J1
1
J1J1
1J1J1
1J1
1U6
1U7
1U8
1U5
1TB5
1TB4
1U13
1U12
AUTO STOP
EMERGENCY STOP
LT RT
5K5
LT RT
5K7
CUSTOMER PROVIDED
LT RT
5K4
LT RT
5K6
LT RT
5K9
LT RT
5K10
LT RT
5K11
LT RT
5K8
LT RT
5K18
CUSTOMER CURRENT
LIMIT SETPOINT INPUT
2-10V OR 4-20ma
CUSTOMER CHILLED
WATER SETPOINT INPUT
2-10V OR 4-20ma
EXTERNAL CIRCUIT
LOCKOUT SWITCH
EXTERNAL CIRCUIT
LOCKOUT SWITCH
CIRCUIT 2
CIRCUIT 1
ON
OFF
AUTO
5K1
SOURCE
INTERNAL VOLTAGE
INTERNAL VOLTAGE
SOURCE
LT RT
5K15
LT RT
5K14
220V 50HZ POWER
115V 60HZ POWER
4
2
1 3
J2
2
1
J3
2
1
J2
J1 J11
4
J2
3
1
2
65
J11J1
J11J1
1U4
1U11
1U10
LT RT
5K19
5B1
or
START/STOP
ICE MAKING
CP14
CP14
CP15
CP16
CP15
CP16
CP17
CP18
CP19
CP17
CP18
CP19
CP24
CP25
CP26
CP27
CP24
CP25
CP26
CP27
CP20
CP21
CP22
CP23
CP20
CP21
CP22
CP23
CP12
CP13
CP13
CP12
CP5
CP6
CP5
CP6
CP9
CP10
CP30
CP31
CP32
CP33
CP34
CP35
CP36
CP9
CP9
CP9
CP10
CP30
CP31
CP32
CP33
CP34
CP35
CP36
CP9
W1
W2
1T1
H1
H2
H3
H4
380V
126B
415V
13
3
4
SHIELDED TWISTED PAIR LEADS
SHIELDED TWISTED PAIR LEADS
TO TRACER OR
OTHER TRANE
REMOTE DEVICE
TO NEXT UNIT
11
CP40
CP39
CP38
CP37
CP37
CP38
CP39
CP40
1K16
1K17
LIMITED UNIT OPERATION INDICATOR
MAXIMUM UNIT CAPACITY INDICATOR
UNIT OPERATION INDICATOR
UNIT OPERATION INDICATOR
ALARM INDICATOR
ALARM INDICATOR
5K1-OL
5K1
5K1 AUX
5S1
CHILLED WATER
PUMP CONTROL
WATER FLOW
INTERLOCKS
SWITCH AND
UNIT OPERATING
STATUS
ICE MAKING
STATUS
(ACTIVE OR
COMPLETE)
AUTO/EMERGENCY
STOP
EXTERNAL
LOCKOUT
EXTERNAL CURRENT
LIMIT & EXTERNAL
CHILLED WATER
SETPOINT
ICE MAKING
CONTROL
TRACER
COMMUNICATIONS
STATUS
ICE MAKING
CUSTOMER
PROVIDED
CLASS 2
CONTROL
WIRING
(OPTIONAL)
(OPTIONAL)
CIRUIT
(OPTIONAL)
(OPTIONAL)
(OPTIONAL)
CP41
CP42
CP43
CP44
CP44
CP43
CP41
CP42
SUPPLY FOR
EVAPORATOR HEATER
CONTROL
CUSTOMER
115 VOLT
WIRING
PROVIDED
CONTROL PANEL 1
115V 60HZ POWER
or
220V 50HZ POWER
GENERAL NOTES:
CAUTION-DO NOT ENERGIZE THE UNIT UNTIL CHECK OUT AND STARTUP PROCEDURES HAVE BEEN COMPLETED.
ALL MOTORS ARE PROTECTED FROM PRIMARY SINGLE PHASE FAILURES.
THE FOLLOWING FEATURES ARE OPTIONAL AND MAY OR MAY NOT BE PROVIDED. CUSTOMER PROVIDED WIRING FOR ALL STANDARD
FEATURES AND OPTIONS IS SHOWN ON THIS DIAGRAM. OPTIONAL FEATURES ARE SO NOTED.
LOW VOLTAGE OPTIONS (CLASS 2)
TRACER COMMUNICATION INTERFACE
ICE MAKING START/STOP
EXTERNAL CURENT LIMIT AND EXTERNAL CHILLED WATER SETPOINT
LINE VOLTAGE OPTIONS
EVAPORATOR HEATER (FREEZE PROTECTION). STANDARD WITH UNIT MOUNTED EVAPORATOR. NOT USED WITH
REMOTE EVAPORATOR OPTION.
ICE MAKING STATUS
UNIT OPERATING STATUS MODULE
WIRING REQUIREMENTS
RECOMMENDED FIELD WIRING CONNECTIONS ARE SHOWN BY DOTTED LINES.
ALL FIELD WIRING MUST BE IN ACCORDANCE WITH THE NATIONAL ELECTRIC CODE AND STATE AND LOCAL REQUIREMENTS.
EXPORT UNIT WIRING MUST COMPLY WITH LOCAL APPLICABLE CODES.
ALL UNIT POWER WIRING MUST BE COPPER CONDUCTORS ONLY AND HAVE A MINIMUM TEMPERATURE INSULATION RATING OF
WIRING LUG SIZE PROVIDED ON THE VARIOUS UNITS IS SHOWN IN CHART DRAWING 2309-2246.
ALL CUSTOMER CONTROL CIRCUIT WIRING MUST BE COPPER CONDUCTORS ONLY AND HAVE A MINIMUM INSULATION RATING OF 300 VOLTS.
EXCEPT AS NOTED ALL CUSTOMER WIRING CONNECTIONS ARE MADE TO CIRCUIT BOARD MOUNTED BOX LUGS WITH A WIRE RANGE OF 14
TO 18 AWG. THE HEAT TAPE AND/OR CONVENIENCE OUTLET AND THE GROUND SIDE OF THE FLOW SWITCH GO TO TERMINAL STRIPS WITH A
DO NOT RUN LOW VOLTAGE CONTROL WIRING (30 VOLTS OR LESS) IN CONDUIT WITH 110 VOLT OR HIGHER WIRING. DO NOT EXCEED
THE FOLLOWING MAXIMUM RUN LENGTHS FOR A GIVEN SIZE: 14 AWG, 5000 FT; 16 AWG, 2000 FT; 18 AWG, 1000FT
SHIELDED TWISTED PAIR LEADS ARE REQUIRED FOR CONNECTIONS TO THE COMMUNICATIONS INTERFACE MODULE (1U8). THE
SHIELD SHOULD BE GROUNDED AT THE RTAC CONTROL PANEL END.
THE CONTACTS FOR THESE FEATURES ARE JUMPERED AT THE FACTORY BY JUMPERS W1 & W2 TO ENABLE UNIT OPERATION. IF REMOTE
CONTROL IS DESIRED REMOVE THE JUMPERS AND CONNECT TO THE DESIRED CONTROL CIRCUIT.
AS SHIPPED THE NORMAL 400 VOLT UNIT CONTROL POWER TRANSFORMERS ARE WIRED ON THE 400 VOLT TAP (H3). TRANSFORMER
LEADS 126A & 126B SHOULD BE RECONNECTED TO THE APPROPRIATE TAP FOR THE 380 (H2) OR 415 (H4) VOLT POWER SUPPLIES.
CONTACT RATINGS AND REQUIREMENTS
UNIT PROVIDED DRY CONTACTS FOR THE EVAPORATOR PUMP CONTROL, THE UNIT OPERATING STATUS RELAYS & THE ICE MAKING
STATUS RELAY (1U10, 1U12, & 1U13) ARE RATED FOR 7.2 AMPS RESISTIVE, 2.88 AMPS PILOT DUTY, OR 1/3 HP, 7.2 FLA AT 120 VOLTS 60
HZ. CONTACTS ARE RATED FOR 5 AMPS GENERAL PURPOSE DUTY AT 240 VOLTS. THE MAX FUSE SIZE FOR ANY OF THESE CIRCUITS IS 15 AMPS.
CUSTOMER SUPPLIED CONTACTS FOR ALL LOW VOLTAGE CONNECTIONS MUST BE COMPATABLE WITH DRY CIRCUIT 24 VOLTS DC
FOR A 12 MA RESISTIVE LOAD. SILVER OR GOLD PLATED CONTACTS ARE RECOMMENDED.
7
9
10
11
12
13
15
16
1.
2.
5.
6.
126A
400V
12
9
10
90 DEGREE C. SEE UNIT NAMEPLATE FOR MINIMUM CIRCUIT AMPACITY AND MAXIMUM FUSE SIZE REQUIREMENTS. THE POWER
16
115V 60HZ POWER
OR
220V 50HZ POWER
FOR CHILLED WATER
PUMP CONTROL
EVAPORATOR WATER
FLOW INTERLOCK CIRCUIT
FOR OPTIONAL
UNIT OPERATING
4
IS 15 AMPS
MAX FUSE SIZE
3
9
H
N
15 AMPS FOR 50HZ
MAX FUSE SIZE
IS 15 AMPS
MAX FUSE SIZE
H
N
H
N
FLOW SWITCH AND INTERLOCK CONTACTS MUST BE ACCEPTABLE FOR USE IN A 120 VOLT 1mA CIRCUIT. OR A 220 VOLT 2mA CIRCUIT.
GROUND ALL CUSTOMER PROVIDED 115 VOLT POWER SUPPLIES AS REQUIRED BY CODES. GREEN GROUND SCREWS ARE PROVIDED IN THE
UNIT CONTROL PANEL.
17
14
14
9
17
15
15
115V 60HZ
OR 220V 50HZ
IS 15 AMPS
MAX FUSE SIZE
15
H
N
CUSTOMER PROVIDED
FOR OPTIONAL
ICE MAKING
STATUS
STATUS MODULE
115 VOLT OPTIONS FOR 60HZ, OR 220 VOLT OPTIONS FOR 50HZ.
#10 SET SCREW WHICH WILL ACCEPT RING OR FORK TERMINALS OR STRIPPED WIRE LEADS.
11
18
18
USE REAR
6 KNOCKOUTS
MAXIMUM UNIT CAPACITY INDICATOR
LIMITED UNIT OPERATION INDICATOR
IN PANEL
4
CUSTOMER PROVIDED
CUSTOMER PROVIDED
14
USE FRONT
6 KNOCKOUTS
IN PANEL
THE FIELD PROVIDED INDICATORS MAY BE RELAYS (AS SHOWN), LIGHTS OR AUDIBLE DEVICES. FOUR DUPLICATE FUNCTIONS ARE SHOWN.
THE DUPLICATE FUNCTIONS MAY BE CONNECTED TO EITHER OR BOTH OF THE NORMALLY OPEN OR NORMALLY CLOSED RELAY CONTACTS
OF EACH OF THE 4 SPDT RELAYS ON THE OPTIONAL UNIT OPERATING STATUS MODULE.
THE FUNCTIONS OF THE OPERATING STATUS MODULE RELAYS ARE PROGRAMABLE. DEFAULT FUNCTIONS ARE SHOWN. SEE IOM FOR DETAILS.
20 AMPS FOR 60HZ
CIRCUIT 1
LINE VOLTAGE
POWER SUPPLY
FOR DUAL SOURCE
POWER OPTION
CIRCUIT 2
POWER OPTION
FOR DUAL SOURCE
POWER SUPPLY
LINE VOLTAGE
4
3
CAUTION-TRANE PUMP CONTROL MUST BE USED TO PROVIDED PUMP CONTROL. EVAPORATOR CHILLED WATER
PUMP MUST BE CONTROLLED BY THE CHILLER OUTPUT. FAILURE TO COMPLY WITH THIS REQUIREMENT
MAY RESULT IN DAMAGE TO THE UNIT.
3
7
19
7
19
19
TB1
SW1
4
7
or
CB1
or
L1
L3
L2
GROUND
ATTACH
INSET A
CKT 1 OR CKT 2
(VERTICAL MOUNTING)
SINGLE OR DUAL SOURCE POWER MAY BE SPECIFIED. THIS DRAWING COVERS THE DUAL SOURCE POWER OPTION.
WHEN SPECIFIED CUSTOMER POWER WIRING CONNECTIONS ARE MADE TO CIRCUIT 1 (CONTROL PANEL 1) AND
CIRCUIT 2 (CONTROL PANEL 2). AVAILABLE OPTIONS IN PANELS 1 & 2 FOR CUSTOMER WIRING TERMINATION
INCLUDE TERMINAL BLOCKS, DISCONNECT SWITCHES OR HACR TYPE CIRCUIT BREAKERS. (TB, SW, CB)
THE NOTED WIRE TERMINATION DEVICES MAY BE MOUNTED VERTICALLY OR HORIZONTALLY. SEE INSET A FOR
CORRECT PHASING WHEN THE DEVICES ARE MOUNTED VERTICALLY.
19
CONVENIENCE OUTLET OPTION IS AVAILABLE ONLY ON 60HZ UNITS.
REPLACEMENT FUSE SIZES
ALL
CONTROL POWER TRANSFORMER 24 VOLT SEC.
INVERTER DRIVE AND OR INVERTER TRANSFORMER PRI.
380/60
CONTROL POWER TRANSFORMER 115 VOLT SEC.
CONTROL POWER TRANSFORMER PRIMARY
FUSE PROTECT FUNCTION UNIT SIZE
250 TO 500
575/60
ALL
400/50
460/60
380/60
230/60
UNIT VOLTAGE
ALL
200/60
1F16/2F16
5
1F17-1F22/2F17-2F22
9
1F15/2F15
1F13,1F14/2F13,2F14
DESIGNATION
1F1-1F6/1F23-1F28/2F7-2F12/2F23-2F28
VOLTS
600
R
CLASS
4
5
10
6
5
3.5
6.25
AMPS
40
CONDENSER FANS
460/60,400/50
575/60
10
6.25
CC
FOR CONVENIENCE
115V 60HZ POWER
MAX FUSE SIZE 15 AMPS
CUSTOMER PROVIDED
OUTLET
H
N
4
4
FAILURE TO DO SO MAY CAUSE DAMAGE TO THE
UNIT TERMINALS ARE NOT DESIGNED TO ACCEPT
N'UTILISER QUE DES CONDUCTEURS EN CUIVRE!
LES BORNES DE L'UNITÉ NE SONT PAS CONÇUES
POUR RECEVOIR D'AUTRES TYPES DE CONDUCTEURS.
L'UTILISATION DE TOUT AUTRE CONDUCTEUR PEUT
SI NO LO HACE, PUEDE OCASIONAR DAÑO AL EQUIPO.
PARA ACEPTAR OTROS TIPOS DE CONDUCTORES.
LAS TERMINALES DE LA UNIDAD NO ESTÁN DISEÑADAS
¡UTILICE ÚNICAMENTE CONDUCTORES DE COBRE!
ENDOMMAGER L'ÉQUIPEMENT.
PRECAUCIÓN
OTHER TYPES OF CONDUCTORS.
EQUIPMENT.
ATTENTION
USE COPPER CONDUCTORS ONLY!
CAUTION
INCLUDING REMOTE DISCONNECTS AND
AVERTISSEMENT
ADVERTENCIA
NE PAS RESPECTER CES MESURES DE
FOLLOW LOCK OUT AND TAG PROCEDURES
BEFORE SERVICING. INSURE THAT ALL
MOTOR CAPACITORS HAVE DISCHARGED
STORED VOLTAGE. UNITS WITH VARIABLE
INSTRUCTIONS FOR CAPACITOR DISCHARGE.
SERVICING COULD RESULT IN DEATH OR
INSTRUCTIONS DE L'ENTRAÎNEMENT POUR
VITESSE VARIABLE, SE REPORTER AUX
DÉCHARGÉS. DANS LE CAS D'UNITÉS
LES CONDENSATEURS DES MOTEURS SONT
TOUTE INTERVENTION. VÉRIFIER QUE TOUS
VERROUILLAGE ET DES ÉTIQUETTES AVANT
OUVRIR LES SECTIONNEURS À DISTANCE,
PRÉCAUTION PEUT ENTRAÎNER DES
BLESSURES GRAVES POUVANT ÊTRE
DÉCHARGER LES CONDENSATEURS.
MORTELLES.
TENSION DANGEREUSE!
SPEED DRIVE, REFER TO DRIVE
FAILURE TO DO THE ABOVE BEFORE
COMPORTANT DES ENTRAÎNEMENTS À
PUIS SUIVRE LES PROCÉDURES DE
COUPER TOUTES LES TENSIONS ET
SERIOUS INJURY.
WARNING
DISCONNECT ALL ELECTRIC POWER
HAZARDOUS VOLTAGE!
CONSULTE LAS INSTRUCCIONES PARA LA
DIRECCIÓN DE VELOCIDAD VARIABLE,
PARA LAS UNIDADES CON EJE DE
SERVICIO. ASEGÚRESE DE QUE TODOS
ETIQUETADO ANTES DE PROCEDER AL
SIGA LOS PROCEDIMIENTOS DE CIERRE Y
INCLUSO LAS DESCONEXIONES REMOTAS Y
O SERIAS LESIONES PERSONALES.
INDICADO, PODRÍA OCASIONAR LA MUERTE
EL NO REALIZAR LO ANTERIORMENTE
DESCARGA DEL CONDENSADOR.
LOS CAPACITORES DEL MOTOR HAYAN
iVOLTAJE PELIGROSO!
DESCARGADO EL VOLTAJE ALMACENADO.
DESCONECTE TODA LA ENERGÍA ELÉCTRICA,
Wiring Diagram
Fig. XII-21 – Field wiring, 3&4 Length, Dual input

Related product manuals