EasyManua.ls Logo

Trane RTAC 150 Series - Page 134

Trane RTAC 150 Series
138 pages
Print Icon
To Next Page IconTo Next Page
To Next Page IconTo Next Page
To Previous Page IconTo Previous Page
To Previous Page IconTo Previous Page
Loading...
RTAC-SVX002A-EN 134
AUTO STOP
EMERGENCY STOP
CIRCUIT #1
CIRCUIT #2
(OPTIONAL)
(OPTIONAL)
CURRENT LIMIT SETPOINT
CHILLED WATER SETPOINT
PUMP CONTROL
AUXILIARY & FLOW
CHILLED WATER PUMP
TRANE CHILLED WATER
SWITCH INTERLOCKS
(OPTIONAL)
(OPTIONAL)
INDICATER
UNIT OPERATION
INDICATOR
MAXIMUM UNIT CAPACITY
EVAPORATOR HEATER
AND/OR
CHILLED WATER
PUMP
CHILLED WATER
FLOW SWITCH
CLASS 2
CUSTOMER
WIRING
115V
LINE VOLTAGE
SINGLE OR
DUAL SOURCE
LIMITED UNIT OPERATION
INDICATOR
(OPTIONAL)
CHILLER
EVAPORATOR
TRANE TRACER
OR
CONVENIENCE OUTLET
(OPTIONAL)
10
4
15
11
12
2 WIRES
SHIELDED TWISTED PAIR LEADS
SHIELDED TWISTED PAIR LEADS
11
3 WIRES MAXIMUM
2 WIRES
2 WIRES
2 WIRES & GROUND IF REQUIRED
2 WIRES
2 WIRES
3
3 WIRES
UNIT POWER SUPPLY
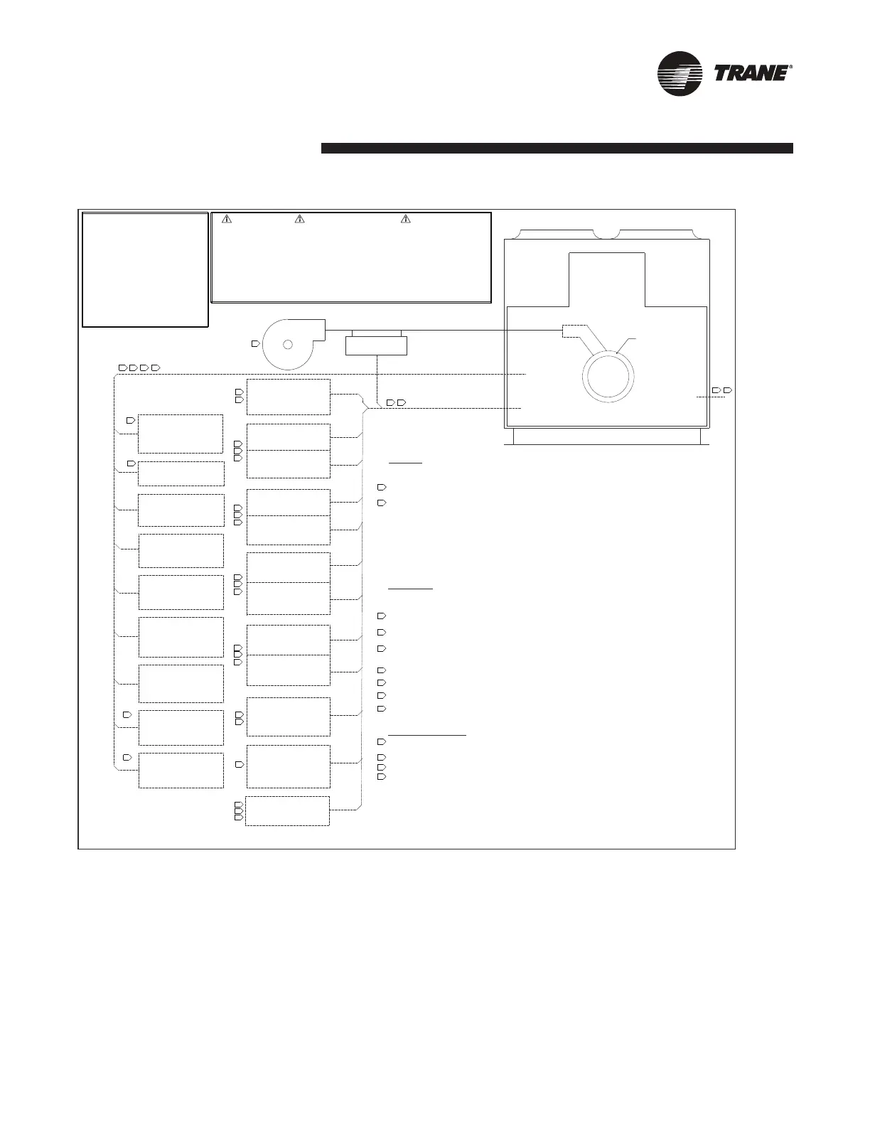
GENERAL NOTES:
CAUTION-DO NOT ENERGIZE THE UNIT UNTIL CHECK OUT AND STARTUP PROCEDURES HAVE BEEN COMPLETED.
ALL MOTORS ARE PROTECTED FROM PRIMARY SINGLE PHASE FAILURES.
THE FOLLOWING FEATURES ARE OPTIONAL AND MAY OR MAY NOT BE PROVIDED. CUSTOMER PROVIDED WIRING FOR ALL STANDARD
FEATURES AND OPTIONS IS SHOWN ON THIS DIAGRAM. OPTIONAL FEATURES ARE SO NOTED.
LOW VOLTAGE OPTIONAL (CLASS 2)
TRACER COMMUNICATION INTERFACE
ICE MAKING START/STOP
EXTERNAL CURRENT LIMIT AND EXTERNAL CHILLED WATER SETPOINT
115 VOLT OPTIONS FOR 60HZ UNITS OR 220 VOLT OPTIONS FOR 50HZ UNITS.
UNIT MOUNTED TERMINAL BLOCK, DISCONNECT OR HACR CIRCUIT BREAKER
SINGLE SOURCE POWER IS PROVIDED AS STANDARD. DUAL SOURCE POWER IS AVAILABLE AS AN OPTION.
EVAPORATOR HEATER (FREEZE PROTECTION). STANDARD WITH UNIT-
CONVENIENCE OUTLET
ICE MAKING STATUS
UNIT OPERATING STATUS MODULE
WIRING REQUIREMENTS
RECOMMENDED FIELD WIRING CONNECTIONS ARE SHOWN BY DOTTED LINES
ALL FIELD WIRING MUST BE IN ACCORDANCE WITH THE NATIONAL ELECTRIC CODE AND STATE AND LOCAL REQUIREMENTS.
EXPORT UNIT WIRING MUST COMPLY WITH LOCAL APPLICABLE CODES.
ALL UNIT POWER WIRING MUST BE COPPER CONDUCTORS ONLY AND HAVE A MINIMUM TEMPERATURE INSULATION RATING OF
WIRING LUG SIZE PROVIDED ON THE VARIOUS UNITS IS SHOWN IN THE TABLE BELOW.
POWER FOR THE EVAPORATOR HEATER AND/OR OPTIONAL CONVENIENCE OUTLET IS SUPPLIED BY A COMMON CUSTOMER PROVIDED POWER
SUPPLY. WHEN POWERED, THE HEAT TAPE WILL USE 1640 VA OF THE TOTAL AVAILABLE SUPPLY ON 60HZ UNITS AND APPROXIMATELY
ALL CUSTOMER CONTROL CIRCUIT WIRING MUST BE COPPER CONDUCTORS ONLY AND HAVE A MINIMUM INSULATION RATING OF 300 VOLTS.
EXCEPT AS NOTED ALL CUSTOMER WIRING CONNECTIONS ARE MADE TO CIRCUIT BOARD MOUNTED BOX LUGS WITH A WIRE RANGE OF 14
TO 18 AWG. THE HEAT TAPE AND/OR CONVENIENCE OUTLET AND THE GROUND SIDE OF THE FLOW SWITCH GO TO TERMINAL STRIPS WITH A
DO NOT RUN LOW VOLTAGE CONTROL WIRING (30 VOLTS OR LESS) IN CONDUIT WITH 110 VOLT OR HIGHER WIRING. DO NOT EXCEED
THE FOLLOWING MAXIMUM RUN LENGTHS FOR A GIVEN SIZE: 14 AWG, 5000 FT; 16 AWG, 2000 FT; 18 AWG, 1000FT
SHIELDED TWISTED PAIR LEADS ARE REQUIRED FOR CONNECTIONS TO THE COMMUNICATIONS INTERFACE MODULE (1U8). THE
SHIELD SHOULD BE GROUNDED AT THE RTAC CONTROL PANEL END.
THE CONTACTS FOR THESE FEATURES ARE JUMPERED AT THE FACTORY BY JUMPERS W1 & W2 TO ENABLE UNIT OPERATION. IF
IF REMOTE CONTROL IS DESIRED REMOVE THE NOTED JUMPERS AND CONNECT TO THE DESIRED CONTROL CIRCUIT.
CONTACT RATINGS AND REQUIREMENTS
UNIT PROVIDED DRY CONTACTS FOR THE EVAPORATOR PUMP CONTROL, THE UNIT OPERATING STATUS RELAYS AND ICE MAKING STATUS RELAY
ARE RATED FOR 7.2 AMPS RESISTIVE, 2.88 AMPS PILOT DUTY, OR 1/3 HP, 7.2 FLA AT 120 VOLTS 60 HZ, CONTACTS ARE RATED FOR 5 AMPS
GENERAL PURPOSE DUTY AT 240 VOLTS.
CUSTOMER SUPPLIED CONTACTS FOR ALL CLASS 2 CONNECTIONS MUST BE COMPATABLE WITH DRY CIRCUIT 24 VOLTS DC
FOR A 12 MA RESISTIVE LOAD. SILVER OR GOLD PLATED CONTACTS ARE RECOMMENDED.
7
8
9
10
11
12
14
15
1.
2.
5.
6.
90 DEGREE C. SEE UNIT NAMEPLATE FOR MINIMUM CIRCUIT AMPACITY AND MAXIMUM FUSE SIZE REQUIREMENTS. THE POWER
ENTRANCE
ENTRANCE
WIRING
CUSTOMER
OTHER REMOTE DEVICE
LINK TO NEXT UNIT
START STOP ICE MAKING
(OPTIONAL)
3 WIRES MAXIMUM
(OPTIONAL)
EXTERNAL LOCKOUT
EXTERNAL LOCKOUT
3 WIRES MINIMUM &
8
(OPTIONAL)
16
FLOW SWITCH & INTERLOCK CONTACTS MUST BE ACCEPTABLE FOR USE IN A 120 VOLT 1 mA CIRCUIT OR A 220 VOLT 2 mA CIRCUT.
16
9
3 WIRES MINIMUM &
GROUND IF REQUIRED
GROUND IF REQUIRED
3 WIRES MINIMUM &
GROUND IF REQUIRED
3 WIRES MINIMUM &
GROUND IF REQUIRED
3 WIRES MINIMUM &
17
14
13
BINARY INPUTS TO UNIT.
CONTACT CLOSURE INDICATES
CHILLED WATER FLOW
13
14
13
(OPTIONAL)
BINARY INPUT TO UNIT. CONTACT
CLOSURE ENABLES ICE MAKING
2-10 VOLT OR 4-20 mA INPUT
TO UNIT
TO UNIT
2-10 VOLT OR 4-20 mA INPUT
BINARY INPUT TO UNIT.
OPEN CONTACTS ENABLE UNIT
OPERATION
BINARY INPUT TO UNIT.
OPEN CONTACTS ENABLE UNIT
OPERATION
BINARY INPUT TO UNIT.
CLOSED CONTACTS ENABLE UNIT
OPERATION
BINARY INPUT TO UNIT.
CLOSED CONTACTS ENABLE UNIT
OPERATION
4
9
(REAR 6 KNOCKOUTS
(FRONT 6 KNOCKOUTS
4 7
GROUND IF REQUIRED
3 WIRES MINIMUM &
(OPTIONAL)
INDICATOR
MAXIMUM UNIT CAPACITY
17
13
14
(OPTIONAL)
3 WIRES MINIMUM &
GROUND IF REQUIRED
INDICATER
UNIT OPERATION
17
14
13
GROUND IF REQUIRED
(OPTIONAL)
ALARM INDICATOR
3 WIRES MINIMUM &
ICE MAKING STATUS
(OPTIONAL)
3 WIRES & GROUND IF REQUIRED
TO NORMALLY OPEN CONTACTS
WHICH CLOSE WHEN ICE BUILD
14
13
IS COMPLETE
12
13
14
17
3 WIRES MINIMUM &
GROUND IF REQUIRED
(OPTIONAL)
INDICATOR
LIMITED UNIT OPERATION
ALARM INDICATOR
GROUND IF REQUIRED
THE FIELD PROVIDED INDICATORS MAY BE RELAYS, LIGHTS OR AUDIBLE DEVICES. FOUR DUPLICATE INDICATOR FUNCTIONS ARE SHOWN.
THE DUPLICATE FUNCTIONS MAY BE CONNECTED TO EITHER OR BOTH OF THE NORMALLY OPEN OR NORMALLY CLOSED RELAY CONTACTS
OF EACH OF THE 4 SPDT RELAYS ON THE OPTIONAL UNIT OPERATING STATUS MODULE.
THE FUNCTIONS OF THE OPERATING STATUS MODULE RELAYS ARE PROGRAMABLE. SEE IOM FOR DETAILS. DEFAULT FUNCTIONS ARE SHOWN.
THE NORMALLY OPEN CONTACTS ON EACH RELAY OPERATE AS FOLLOWS:
CONTACTS TO THE ALARM INDICATOR CLOSE ON A UNIT MALFUNCTION.
CONTACTS TH THE UNIT OPERATION INDICATOR CLOSE WHEN ANY COMPRESSOR IS RUNNING.
CONTACTS TO THE MAX UNIT CAPACITY INDICATOR CLOSE WHEN ALL UNIT COMPRESSORS ARE FULLY LOADED.
CONTACTS TO THE LIMITED UNIT OPERATION INDICATOR CLOSE IF NORMAL UNIT OPERATION IS RESTRICTED BY SOME OPERATING PARAMETER.
17
13
#10 SET SCREW WHICH WILL ACCEPT RING OR FORK TERMINALS OR STRIPPED WIRE LEADS.
LINE VOLTAGE OPTIONS
IN PANEL)
IN PANEL)
1390 VA ON 50 HZ UNITS. EVAPORATOR HEATERS ARE NOT PROVIDED WITH REMOTE EVAPORATOR UNITS.
FIELD PROVIDED 115 VOLT 60HZ OR 220 VOLT 50HZ CONTROL POWER SUPPLIES ARE REQUIRED. THE MAX FUSE SIZE FOR EVAPORATOR HEATER
AND CONVENIENCE OUTLET IS 20 AMPS ON 115 VOLT 60HZ PRODUCTS AND 15 AMPS ON 220 VOLT 50 HZ PRODUCTS. THE MAX FUSE SIZE FOR
ALL OTHER FIELD PROVIDED CIRCUITS IS 15 AMPS. GROUND ALL CUSTOMER PROVIDED POWER SUPPLIES AS REQUIRED BY CODE. GREEN GROUND
SCREWS ARE PROVIDED IN UNIT CONTROL PANEL.
3
CAUTION - TRANE PUMP CONTROL MUST BE USED TO PROVIDE PUMP CONTROL. EVAPORATOR CHILLED WATER
PUMP MUST BE CONTROLLED BY THE CHILLER OUTPUT. FAILURE TO COMPLY WITH THIS REQUIREMENT
MAY RESULT IN DAMAGE TO THE UNIT.
3
4
MOUNTED EVAPORATOR. NOT USED WITH REMOTE EVAPORATOR OPTION.
EVAPORATOR MAY
BE UNIT OR REMOTE
MOUNTED
FAILURE TO DO SO MAY CAUSE DAMAGE TO THE
UNIT TERMINALS ARE NOT DESIGNED TO ACCEPT
N'UTILISER QUE DES CONDUCTEURS EN CUIVRE!
LES BORNES DE L'UNITÉ NE SONT PAS CONÇUES
POUR RECEVOIR D'AUTRES TYPES DE CONDUCTEURS.
L'UTILISATION DE TOUT AUTRE CONDUCTEUR PEUT
SI NO LO HACE, PUEDE OCASIONAR DAÑO AL EQUIPO.
PARA ACEPTAR OTROS TIPOS DE CONDUCTORES.
LAS TERMINALES DE LA UNIDAD NO ESTÁN DISEÑADAS
¡UTILICE ÚNICAMENTE CONDUCTORES DE COBRE!
ENDOMMAGER L'ÉQUIPEMENT.
PRECAUCIÓN
OTHER TYPES OF CONDUCTORS.
EQUIPMENT.
ATTENTION
USE COPPER CONDUCTORS ONLY!
CAUTION
INCLUDING REMOTE DISCONNECTS
AVERTISSEMENT ADVERTENCIA
NE PAS RESPECTER CES MESURES DE
PROCEDURES BEFORE SERVICING.
INSURE THAT ALL MOTOR
CAPACITORS HAVE DISCHARGED
STORED VOLTAGE. UNITS WITH
TO DRIVE INSTRUCTIONS FOR
BEFORE SERVICING COULD RESULT
INSTRUCTIONS DE L'ENTRAÎNEMENT POUR
VITESSE VARIABLE, SE REPORTER AUX
DÉCHARGÉS. DANS LE CAS D'UNITÉS
LES CONDENSATEURS DES MOTEURS SONT
TOUTE INTERVENTION. VÉRIFIER QUE TOUS
VERROUILLAGE ET DES ÉTIQUETTES AVANT
OUVRIR LES SECTIONNEURS À DISTANCE,
PRÉCAUTION PEUT ENTRAÎNER DES
BLESSURES GRAVES POUVANT ÊTRE
DÉCHARGER LES CONDENSATEURS.
MORTELLES.
TENSION DANGEREUSE!
VARIABLE SPEED DRIVE, REFER
FAILURE TO DO THE ABOVE
COMPORTANT DES ENTRAÎNEMENTS À
PUIS SUIVRE LES PROCÉDURES DE
COUPER TOUTES LES TENSIONS ET
IN DEATH OR SERIOUS INJURY.
WARNING
DISCONNECT ALL ELECTRIC POWER
HAZARDOUS VOLTAGE!
AND FOLLOW LOCK OUT AND TAG
CAPACITOR DISCHARGE.
iVOLTAJE PELIGROSO!
O SERIAS LESIONES PERSONALES.
INDICADO, PODRÍA OCASIONAR LA MUERTE
EL NO REALIZAR LO ANTERIORMENTE
DESCARGA DEL CONDENSADOR.
CONSULTE LAS INSTRUCCIONES PARA LA
DIRECCIÓN DE VELOCIDAD VARIABLE,
PARA LAS UNIDADES CON EJE DE
DESCARGADO EL VOLTAJE ALMACENADO.
LOS CAPACITORES DEL MOTOR HAYAN
SERVICIO. ASEGÚRESE DE QUE TODOS
ETIQUETADO ANTES DE PROCEDER AL
SIGA LOS PROCEDIMIENTOS DE CIERRE Y
INCLUSO LAS DESCONEXIONES REMOTAS Y
DESCONECTE TODA LA ENERGÍA ELÉCTRICA,
Wiring Diagram
Fig. XII-22 – Field Layout, all - Part 1

Related product manuals