EasyManua.ls Logo

Trane RTAC 250 Series - Page 14

Trane RTAC 250 Series
138 pages
To Next Page IconTo Next Page
To Next Page IconTo Next Page
To Previous Page IconTo Previous Page
To Previous Page IconTo Previous Page
Loading...
14 RTAC-SVX002A-EN
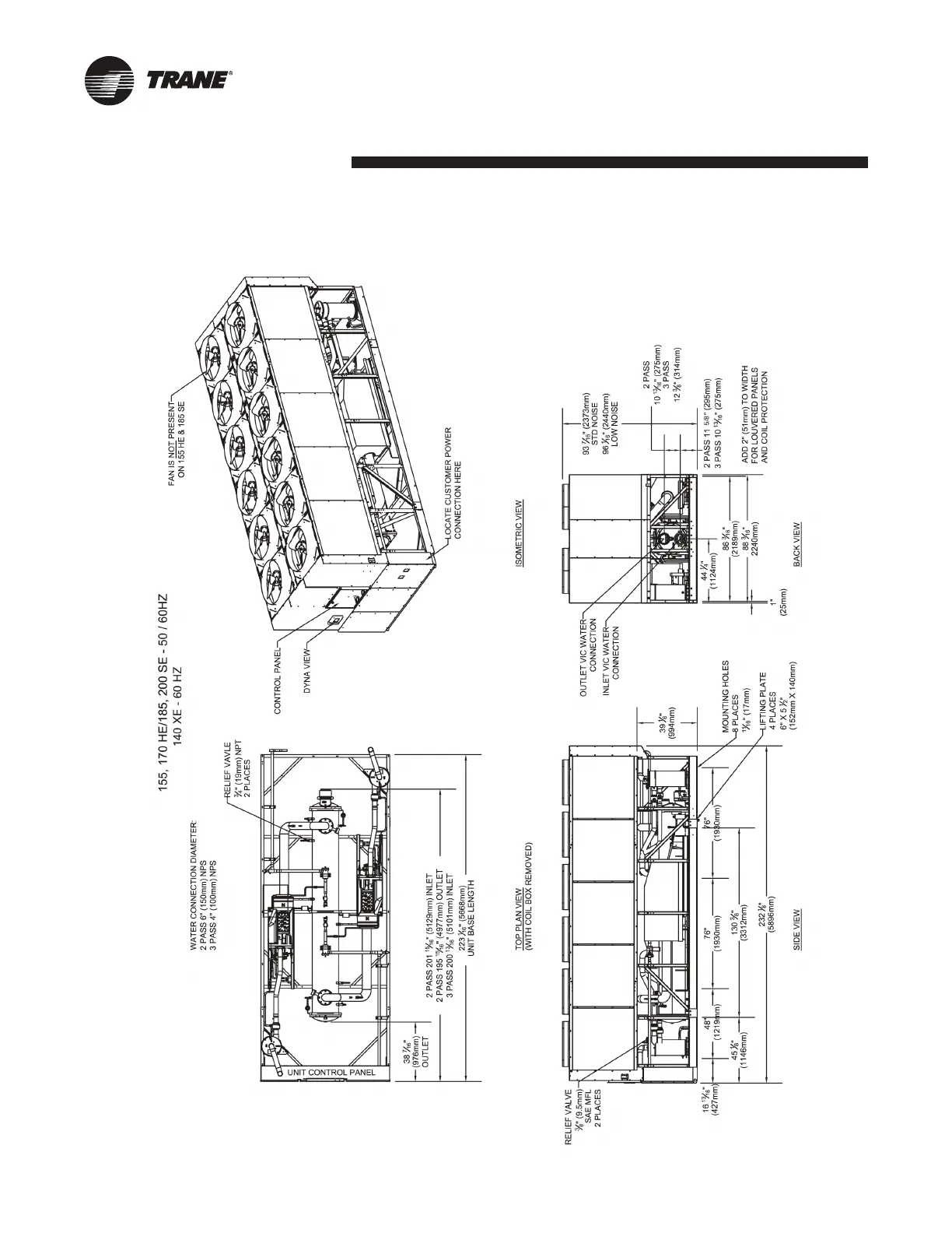
Fig. II-06 - Unit Dimensions 140 XE Ton, 60 Hz and 155-170 HE 185-200 Ton, High Efciency, 50 and 60 Hz
General Information

Related product manuals