EasyManua.ls Logo

Trane RTAC 250 Series - Page 15

Trane RTAC 250 Series
138 pages
To Next Page IconTo Next Page
To Next Page IconTo Next Page
To Previous Page IconTo Previous Page
To Previous Page IconTo Previous Page
Loading...
RTAC-SVX002A-EN 15
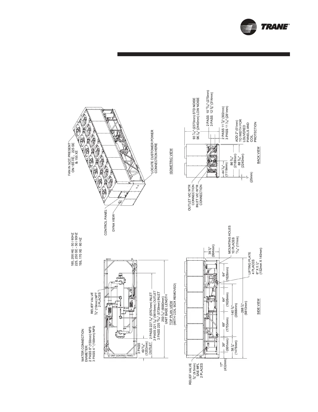
Fig. II-07 - Unit Dimensions 155-170 XE Ton, 60 Hz and 185-200 HE 225-250 SE Ton, 50 and 60 Hz.
General Information

Related product manuals