EasyManua.ls Logo

Trane THC037E - Page 20

Trane THC037E
68 pages
Print Icon
To Next Page IconTo Next Page
To Next Page IconTo Next Page
To Previous Page IconTo Previous Page
To Previous Page IconTo Previous Page
Loading...
Unit Dimensions
20 RT-SVX22M-EN
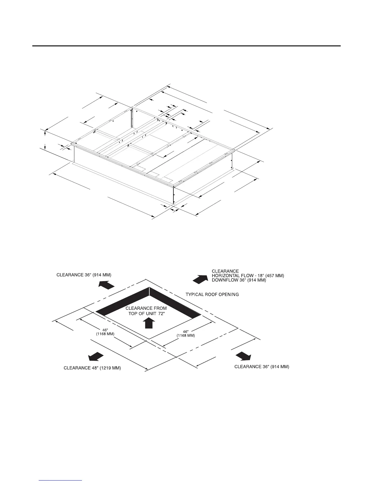
Figure 12. 10 ton high efficiency - roof curb
Note: All dimensions are in inches/millimeters.
13/4
(
44 MM
)
2”
(
51 MM
)
84 1/2”
(2146 MM)
83 7/8”
(2130 MM)
60 3/8”
(1534 MM)
59 7/8”
(
1521 MM
)
14”
(
356 MM
2”
(
51 MM
)
56 3/8”
(1432 MM)
34 3/8”
(873 MM)
34 3/8”
(873 MM)
18 1/2”
(470 MM)
18 1/2”
(470 MM)
1”
(
25 MM
)
1”
25 MM
)
1”
(
25 MM
)
65/8
168 MM
)
80 1/2”
(2045 MM)
CLEARANCE 18” (457 MM) FOR HORIZONTAL
CLEARANCE36”(914 MM) FOR DOWNFLOW
Figure 13. 10 ton high efficiency- unit clearance and roof opening
Note: All dimensions are in inches/millimeters.
99 11/16”
(2532 MM)
63 3/16”
(1605 MM)

Table of Contents

Related product manuals