EasyManua.ls Logo

Trane THC037E - Page 34

Trane THC037E
68 pages
Print Icon
To Next Page IconTo Next Page
To Next Page IconTo Next Page
To Previous Page IconTo Previous Page
To Previous Page IconTo Previous Page
Loading...
Installation
34 RT-SVX22M-EN
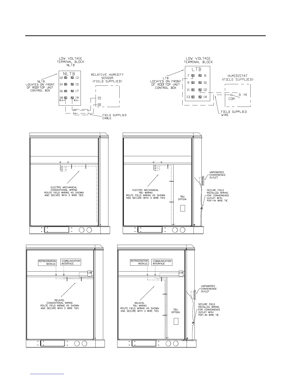
Figure 41. ReliaTel™ relative humidity sensor
(dehumidification option)
Figure 42. ReliaTel humidistat (dehumidification
option)
Figure 43. Electromechanical control customer low voltage routing (all units except 10 ton high efficiency)
Figure 44. ReliaTel control customer low voltage routing (all units except 10 ton high efficiency)

Table of Contents

Related product manuals