EasyManua.ls Logo

Trane WTK507 - Page 15

Trane WTK507
16 pages
Print Icon
To Next Page IconTo Next Page
To Next Page IconTo Next Page
To Previous Page IconTo Previous Page
To Previous Page IconTo Previous Page
Loading...
WTK-SVN001-EN
15
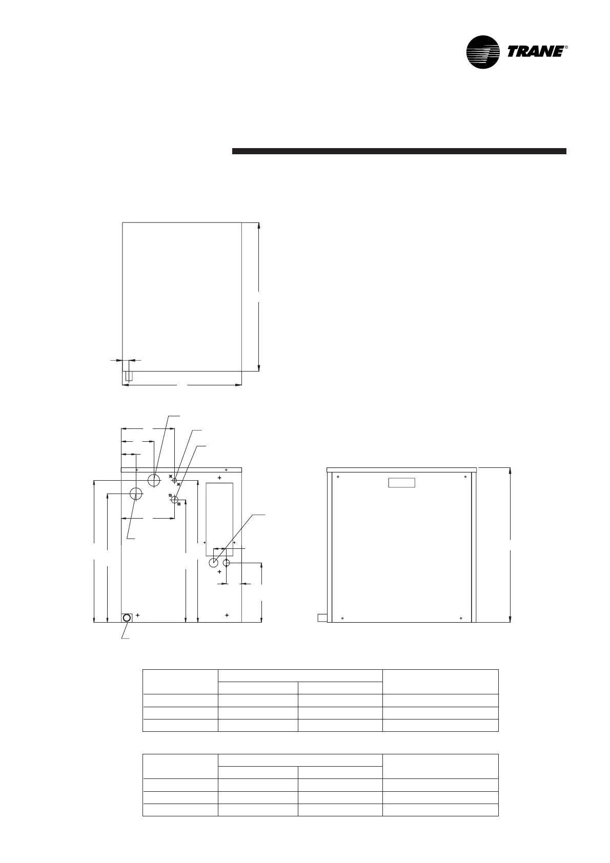
Dimensional Data
WATER INLET
WATER OUTLET
400
22
109
179
179
49
43
51.1
500
520
477.6
432.6
412.6
477.6
200.4
LIQUID LINE
SUCTION LINE
POWER SUPPLY
Ø5/8 In.
Ø3/4 FTP DRAIN PIPE
DOMESTIC
MODEL REFRIGERANT CONNECTION SIZE (In.) WATER
LIQUID SUCTION CONNECTION SIZE (In.)
WTK524-530 3/8 5/8 3/4
WTK536 3/8 3/4 3/4
WTK048-060 1/2 7/8 7/8
EXPORT
MODEL REFRIGERANT CONNECTION SIZE (In.) WATER
LIQUID SUCTION CONNECTION SIZE (In.)
WTK524-530 3/8 5/8 3/4
WTK536 3/8 3/4 3/4
WTK048-060 3/8 1-1/8 7/8
WTK524-060

Related product manuals