EasyManua.ls Logo

Trane YSC037E - Main Unit Power

Trane YSC037E
68 pages
Print Icon
To Next Page IconTo Next Page
To Next Page IconTo Next Page
To Previous Page IconTo Previous Page
To Previous Page IconTo Previous Page
Loading...
Installation
RT-SVX21N-EN 35
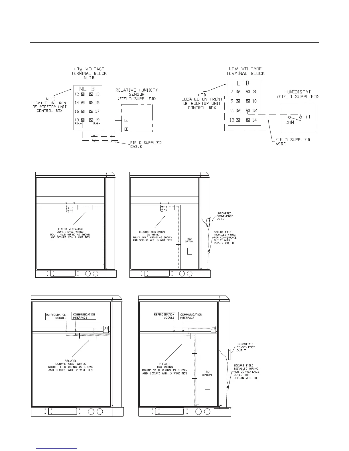
Figure 43. ReliaTel™ relative humidity sensor
(dehumidification option)
Figure 44. ReliaTel™ humidistat (dehumidification
option)
Figure 45. Electromechanical control customer low voltage routing (all units except 10 ton high efficiency)
Figure 46. ReliaTel™ control customer low voltage routing (all units except 10 ton high efficiency)

Table of Contents

Other manuals for Trane YSC037E

Related product manuals