EasyManua.ls Logo

Trianco Contractor H.E. 50/90 EXTERNAL - 2 Introduction to Installation; 3 Technical Information

Trianco Contractor H.E. 50/90 EXTERNAL
24 pages
Print Icon
To Next Page IconTo Next Page
To Next Page IconTo Next Page
To Previous Page IconTo Previous Page
To Previous Page IconTo Previous Page
Loading...
8
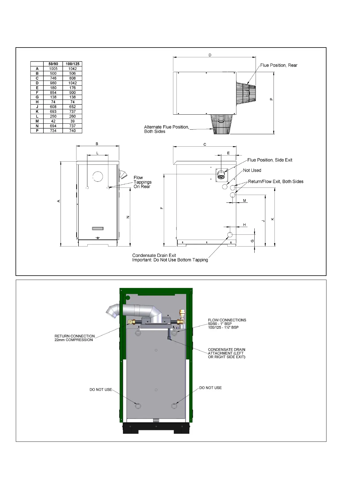
3. TECHNICAL INFORMATION
FIG. 3 OUTLINE DIMENSIONS
FIG. 4
View of rear of boiler showing boiler
connections. Connections can be
made on left or right side of boiler.

Related product manuals