EasyManua.ls Logo

Tyco DSC PG9936 - Page 4

Tyco DSC PG9936
9 pages
Print Icon
To Next Page IconTo Next Page
To Next Page IconTo Next Page
To Previous Page IconTo Previous Page
To Previous Page IconTo Previous Page
Loading...
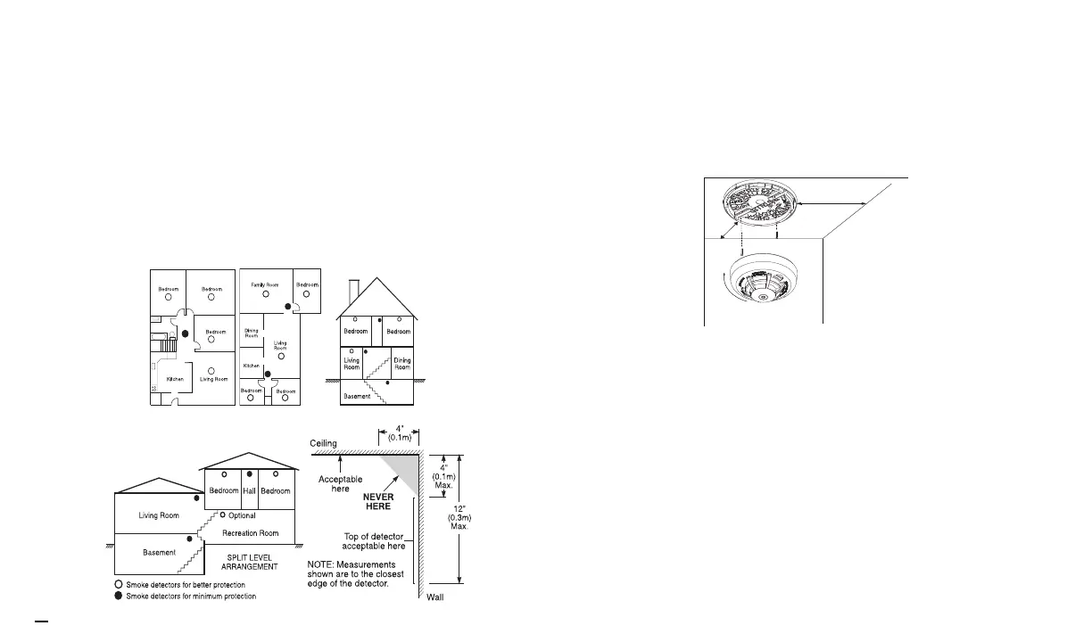
l Smoke detectors must always be installed in USA in accordance with Chapter 29 of NFPA
72, the National Fire Alarm Code: 29.5.1.1.
Where required by applicable laws, codes, or standards for a specific type of occupancy,
approved single and multiple-station smoke alarms shall be installed as follows:
1. In all sleeping rooms and guest rooms.
2. Outside of each separate dwelling unit sleeping area, within 6.4 m (21 ft) of any door to a
sleeping room, the distance measured along a path of travel.
3. On every level of a dwelling unit, including basements.
4. On every level of a residential board and care occupancy (small facility), including
basements and excluding crawl spaces and unfinished attics.
5. In the living areas of a guest suite.
6. In the living areas of a residential board and care occupancy (small facility).
NOTE: In Australia the device shall not be installed in locations where the normal ambient
temperature is lower than 5 ºC or higher than 45 ºC.
2. Mount Smoke Detector Backplate
NOTE: The alarm device should only be installed by a competent engineer or technician.
Smoke detectors are not to be used with smoke detector guards unless the combination
has been evaluated and found suitable for that purpose.
Once a suitable location is found, mount the detector backplate. Install the mounting base on
the ceiling or on the wall (if local ordinances permit) using screw locations as required. Use the
two screws and anchors provided. Maneuver the base so the screws are at the elbow of the
screw slots and secure.
100 mm (4 in.) minimum
100 mm (4 in.)
minimum
3. Mounting
Fit the detector inside the base by aligning it over the base. The detector's alignment notch
should be slightly offset from the mounting base tamper release tab. Then turn the detector
clockwise until it clicks into place.
If there is a need to activate the built-in anti-tamper lock, carefully remove the breakaway tab on
the backplace as shown in the following figure.
4

Related product manuals