EasyManua.ls Logo

Upright SB60 - GENERATOR OPTION, GAS

Upright SB60
179 pages
Print Icon
To Next Page IconTo Next Page
To Next Page IconTo Next Page
To Previous Page IconTo Previous Page
To Previous Page IconTo Previous Page
Loading...
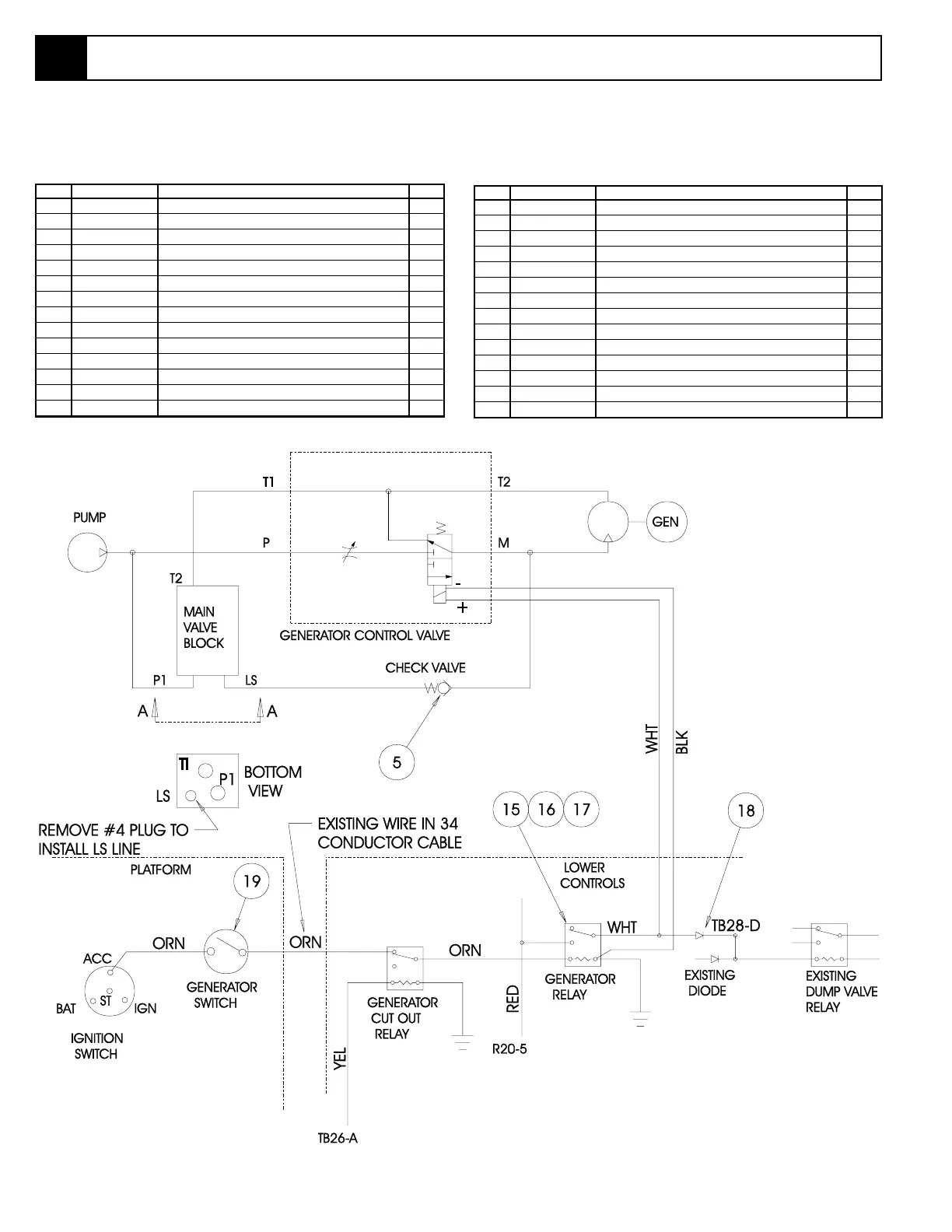
Illustrated Parts Breakdown
Section
SB60 Work Platform6-80
6.2
GENERATOR OPTION, GAS
100098-000
ITEM PART DESCRIPTION QTY.
1 100699-000 WELDMENT, BRACKET 1
2 100702-000 GENERATOR ASSY 1
3 100704-000 VALVE BLOCK 1
4 100705-000 CORD ASSY 1
5 100706-000 VALVE 1
6 100447-000 HOSE KIT 1
7 011934-007 FITTING O RING 90° 8MB-6MJ 3
8 011937-003 FITTING SWIVEL 90° 6FJX-6MJ 2
9 011941-005 FITTING STR 6MB-6MJ 3
10 011934-004 FITTING 0 RING 90° 6MB-6MJ 1
11 011937-004 FITTING SWIVEL 90° 8FJX-8MJ 1
12 014693-004 FITTING REDUCER 8MJ-6MJ 1
13 020733-003 FITTING TEE 8FJX-8MJ-8MJ 1
14 020733-002 FITTING TEE 6FJX-6MJ-6MJ 1
ITEM PART DESCRIPTION QTY.
15 067661-001 RELAY SPDT 12V 2
16 067662-001 SOCKET 2
17 067662-005 RETAINER CLIP 2
18 029825-002 DIODE 3 AMP 1
19 012797-000 SWITCH TOGGLE 1
20 011254-008 SCREW HHC GR5 3/8-16 X 1 12
21 011238-006 WASHER 3/8 16
22 011250-006 NUT 3/8-16 UNC 8
23 018062-006 SPACER 1 5/8 OD X 2 LG 1
24 029451-099 WIRE WHT 16 GA FT2
25 029456-099 WIRE YEL 16 GA FT2
26 029454-099 WIRE RED 16 GA FT2
27 029453-099 WIRE ORN 16 GA FT3
28 011941-002 FITTING STR 4MB-6MJ 1

Related product manuals