EasyManua.ls Logo

urmet domus 788/21 - Two-Channel System Replacements (4340;20, 4340;23)

urmet domus 788/21
24 pages
Print Icon
To Next Page IconTo Next Page
To Next Page IconTo Next Page
To Previous Page IconTo Previous Page
To Previous Page IconTo Previous Page
Loading...
BASIC SYSTEM DIAGRAMS
INSTRUCTIONS FOR URMET DOMUS DEVICE INTERCHANGEABILITY
8
−−−−
sec.1f
DOOR PHONE - VIDEO DOOR PHONE SYSTEMS: Installation Diagrams
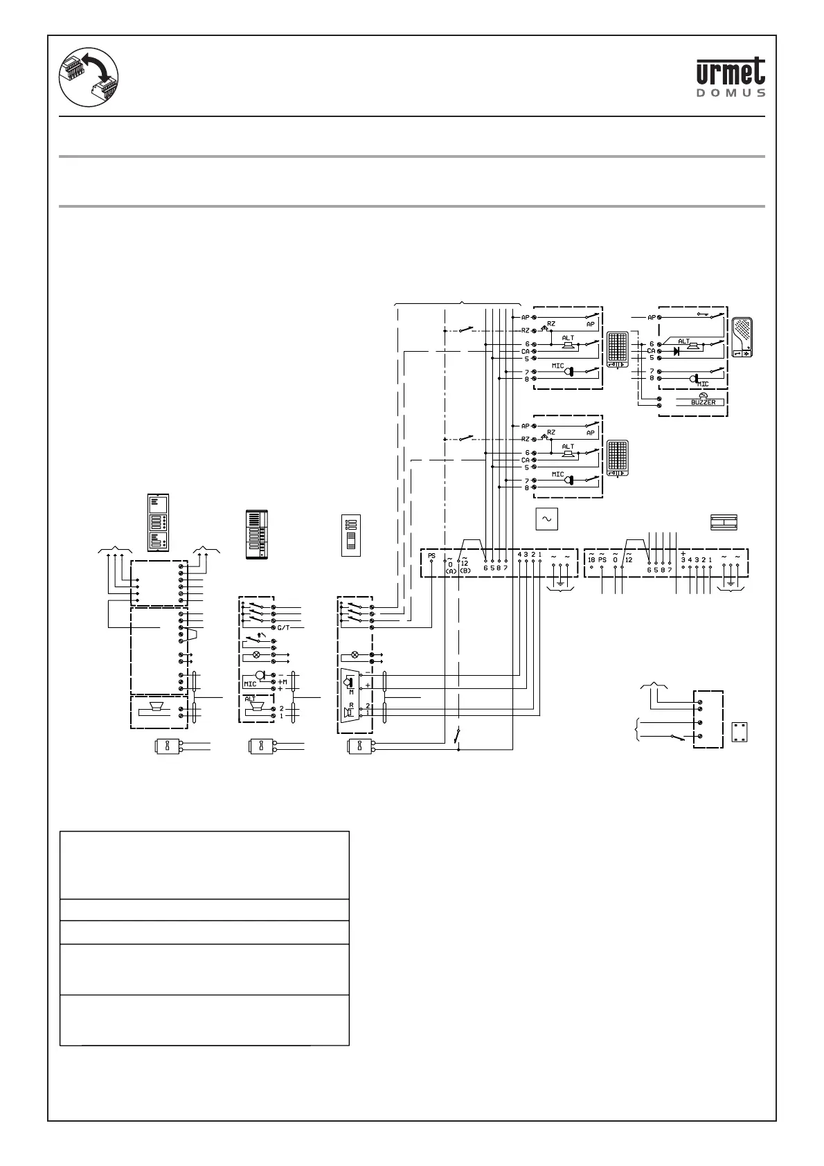
REPLACING DOOR PHONE TWO-CHANNEL SYSTEM POWER UNIT Ref. 4340/20
WITH Ref. 752/20
REPLACING TWO-CHANNEL SYSTEM DOOR PHONE APARTMENT STATION
Ref. 4340/23 WITH Ref. 752/23
REPLACING DOOR PHONE TWO-CHANNEL SYSTEM POWER UNIT Ref. 4340/20 WITH Ref. 752/20
REPLACING TWO-CHANNEL SYSTEM DOOR PHONE APARTMENT STATION Ref. 4340/23 WITH
Ref. 752/23
The Ref. 752/20 power unit can replace the obsolete Ref. 4340/20 model.
The Ref. 752/23 two-channel door phone apartment station replaces the Ref. 4340/23 model.
The correspondence between device terminals is shown in the following diagram.
SC101-0211B
(VX.014)
-/~
+/~
(V X.006)
(V D.007)
(VD.007)
(C 4.009)(C 4.009)(C 4.009)
(C 4.007)
~
~12
~
~0
2
1
~0
~12
G/T
~0
~12
G/T
U4
U3
U2
U1
G/T
U1
L
G/T2
U2
~12
~0
-
+M
+
ELECTRIC LOCK
ELECTRIC LOCK ELECTRIC LOCK
twisted
coupled
wires
twisted
coupled
wires
twisted
coupled wires
To bulb
transformer
To bulb
transformer
To bulb
transformer
4340/27 PANEL
AND DOOR UNIT
KOMBI FREE-HANDS PANEL
AND DOOR UNIT
TO THE
FOLLOWING
MODULE
Name tag
lighting
PUSH
BUTTONS
MODULE
Loudspeaker
module
Microphone
module
INDOOR SET
Ref.4340/23
INDOOR SET
Ref.752/23
TO THE FOLLOWING INDOOR SETS
POWER SUPPLY
Ref.752/20
POWER SUPPLY
Ref.4340/20
MAINS ~MAINS ~
Lock
Release
TRANSFORMER
MAIN ~
Name tag
lighting
C4.009 - IMPORTANT Use cord pairs.
VD.007 =
Floor call button.
C4.007 - Sinthesi models only:
See instruction booklet provided with
product for connecting terminals G/T,
~0 and ~12 between modules.
VX.014 - Dusk switch or similar device
for switching lights on, where
relevant.
VX.006 - See the instruction book
provided with the product for fitting
the accessory in the device.

Related product manuals