EasyManua.ls Logo

V2 ALFARISS - Installation: Rack Mounting and Motor Fixing; Installation: Magnetic Limit Switches

V2 ALFARISS
29 pages
Print Icon
To Next Page IconTo Next Page
To Next Page IconTo Next Page
To Previous Page IconTo Previous Page
To Previous Page IconTo Previous Page
Loading...
ENGLISH
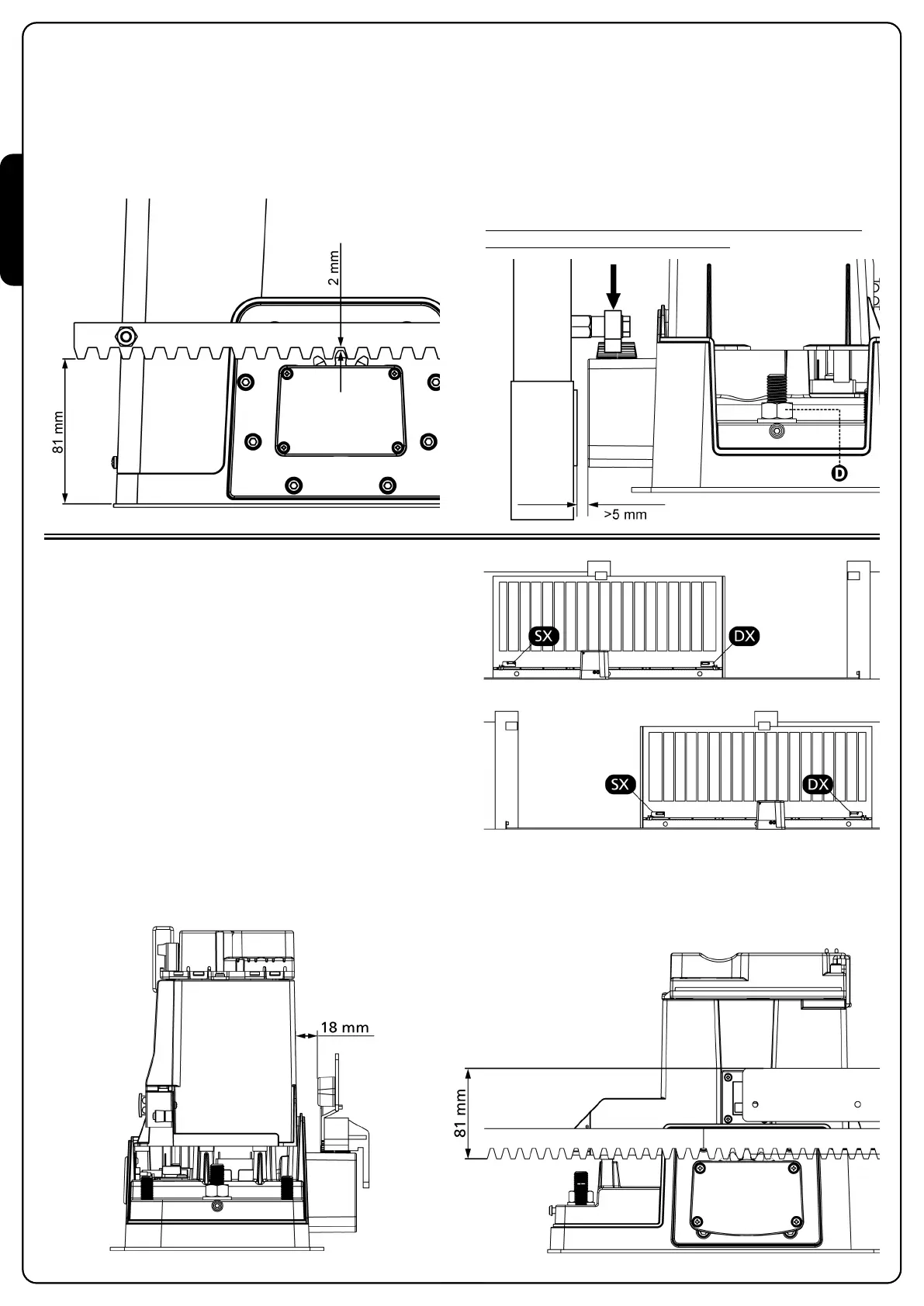
3.3 - FIXING OF THE MOTOR
Check the following points:
1. the motor must be on a levelled surface and perfectly parallel
to the gate
2. the distance between pinion and rack must be 1 or 2 mm.
If needed, adjust the 4 grains
3. the rack must be trued up with the pinion of the motor
4. the minimum distance between the maximum overall of the
gate and the case of the pinion of the motor must be of at
least 5 mm
Check the above indicated conditions and proceed fixing the 4
bolts D anchoring the motor to the plate.
3.2 - MOUNTING THE RACK
Release the motor and turn the gate completely open.
Fix all the rack elements to the gate, making sure that they stand
at the same height than the motor pinion.
The rack MUST BE positioned 1 or 2 mm over the pinion of the
motor all the gate length.
3.4 - INSTALLING THE MAGNETIC LIMIT
SWITCHES
Install the supplied magnet holder on the rack in a way that, in
the opening and closing limit positions, the magnet be
positioned next to the magnetic sensor behind the hood (as near
as possible to the hood).
The supplied magnets have been colored differently in order to
be distinguished from each other:
BLUE MAGNET = RIGHT LIMIT SWITCH (DX)
RED MAGNET = LEFT LIMIT SWITCH (SX)
The type of limit switch (RIGHT/LEFT) depends on the position of
the limit switch towards the motor, independently from the
opening sense.
WARNING: Once checked the proper working of the
system, we suggest to weld the end-of-stroke brackets on
the rack

Related product manuals