EasyManua.ls Logo

V2 ATRIS-700 - Plug In Receiver; ADI Interface

V2 ATRIS-700
Print Icon
To Next Page IconTo Next Page
To Next Page IconTo Next Page
To Previous Page IconTo Previous Page
To Previous Page IconTo Previous Page
Loading...
ENGLISH
- 34 -
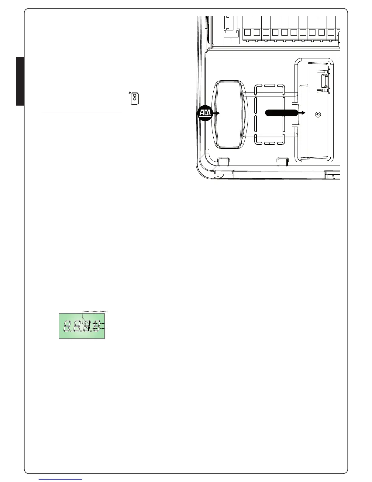
8.11 - PLUG IN RECEIVER
PD22 control unit is suitable for plugging in a MR receiver having
a high-sensitivity super-heterodyne architecture.
MR module receiver is provided with 4 channels and each of
them is suitable for a command of PD22 control unit:
CHANNEL 1 g START
CHANNEL 2 g PARTIAL OPENING FOR VENTILATION
CHANNEL 3 g STOP
CHANNEL 4 g COURTESY LIGHT
To access the MR module programming without opening the
connections compartment, you can use the button and G1
led (only on MR2-U version 1.5 or higher).
NOTE: Before programming 4 channels and function logics
read carefully the instructions of MR.
8.12 - ADI INTERFACE
The ADI (Additional Devices Interface) interface of the control unit
PD22 allows the connection to V2 optional modules.
Refer to V2 catalogue or to the technical sheets to see which
optional modules with ADI interface are available for this control
unit.
m WARNING: Please read the instructions of each single
module to install the optional modules
For some devices, it is possible to configure the mode for
interfacing with the control unit; in addition, it is necessary to
enable the interface so that the control unit can process the
signals arriving from the ADI device.
Please refer to the i.Adi programming menu to enable the ADI
interface and access the device configuration menu.
ADI devices use the display of the control unit to issue alarms or
display the configuration of the control unit.
NOTE: If the ADI interface is not enabled (no device
connected), the segments remain turned off.
PHOTOCELL ALARM
STOP ALARM
EDGE ALARM
The device connected to the Adi interface is able to signal to the
control unit three alarm signals, which are displayed on the
control unit display as follows:
PHOTOCELL ALARM - the upper segment comes on: the door
stops moving, when the alarm stops opening restarts.
EDGE ALARM - the lower segment comes on: inverts motion
of the door for 3 seconds.
STOP ALARM - both segments start flashing: the door stops
and cannot restart until the alarm stops.
L1
L2L3L4L5L6L7L8L9
L10L11
RECEIVER

Table of Contents

Related product manuals