EasyManua.ls Logo

Valtra 6000 - Page 1023

Valtra 6000
1361 pages
Print Icon
To Next Page IconTo Next Page
To Next Page IconTo Next Page
To Previous Page IconTo Previous Page
To Previous Page IconTo Previous Page
Loading...
966
Model Code Page
64. Powered front axle
1. 1. 1995
6000--8750 640 6
8. 11. 1990
M
N
s=0,2
0,5
S= N --- M --- 0,6 m m
75 Nm
s=0,15
0,2
0,5
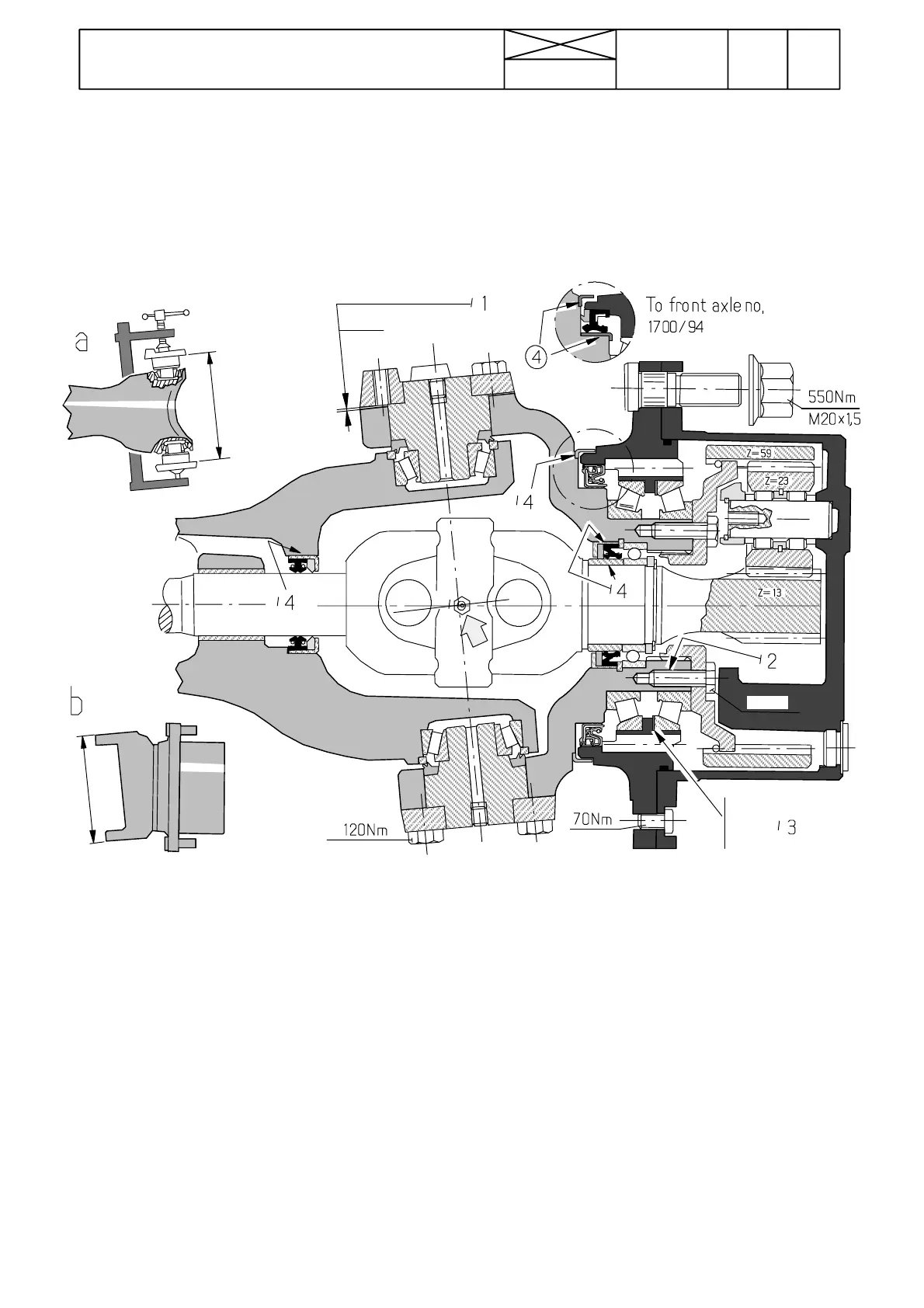
Figure 3. Planetary gear, Sige front axle
1. Shims for adjusting steering knuckle bearing preload
2. Locking fluid Loctite 242 on threads
3. Shims for adjusting wheel bearing preload
4.Sealing compound Loctite 290
a) Adjustment of steering knuckle bearings preload
b) Adjustment of steering knuckle bearings preload

Table of Contents

Related product manuals