EasyManua.ls Logo

Valtra 6000 - Page 171

Valtra 6000
1361 pages
Print Icon
To Next Page IconTo Next Page
To Next Page IconTo Next Page
To Previous Page IconTo Previous Page
To Previous Page IconTo Previous Page
Loading...
164
Model Code Page
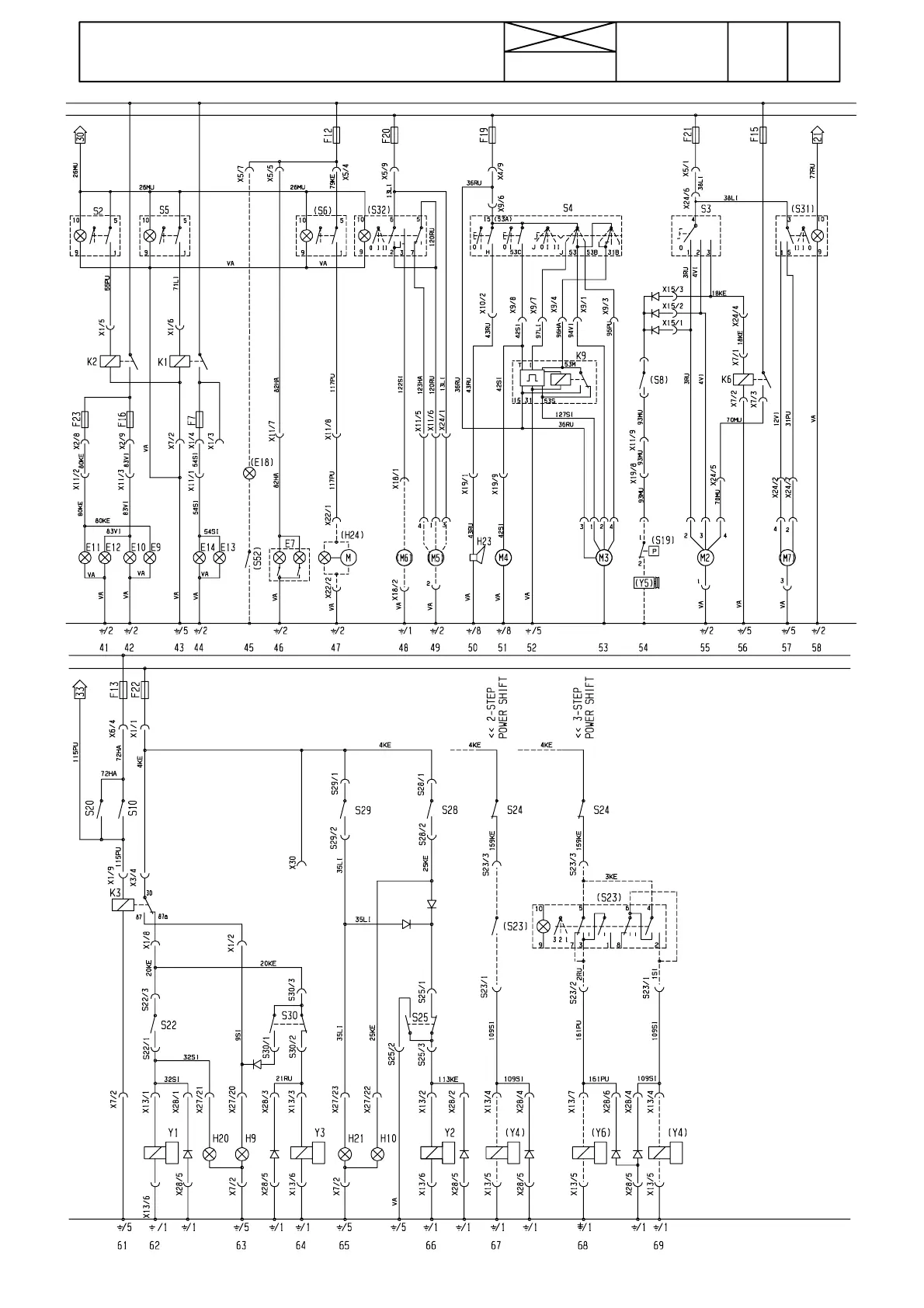
31. Tractor electrical system
6100--8400 310 14
15. 5. 1993
6184--- 130

Table of Contents

Related product manuals