EasyManua.ls Logo

Valtra 6000 - Page 403

Valtra 6000
1361 pages
Print Icon
To Next Page IconTo Next Page
To Next Page IconTo Next Page
To Previous Page IconTo Previous Page
To Previous Page IconTo Previous Page
Loading...
362
Model Code Page
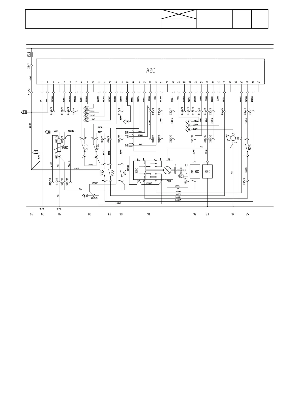
34. Autocontrol ---III
6600E, 8100E 340 16
15. 6. 1992
1. 9. 1992
ECS

Table of Contents

Related product manuals