EasyManua.ls Logo

Valtra 6000 - Page 710

Valtra 6000
1361 pages
Print Icon
To Next Page IconTo Next Page
To Next Page IconTo Next Page
To Previous Page IconTo Previous Page
To Previous Page IconTo Previous Page
Loading...
661
Model Code Page
41. Clutch
6000--8750 411 13
1. 8. 2000
1. 4. 1997
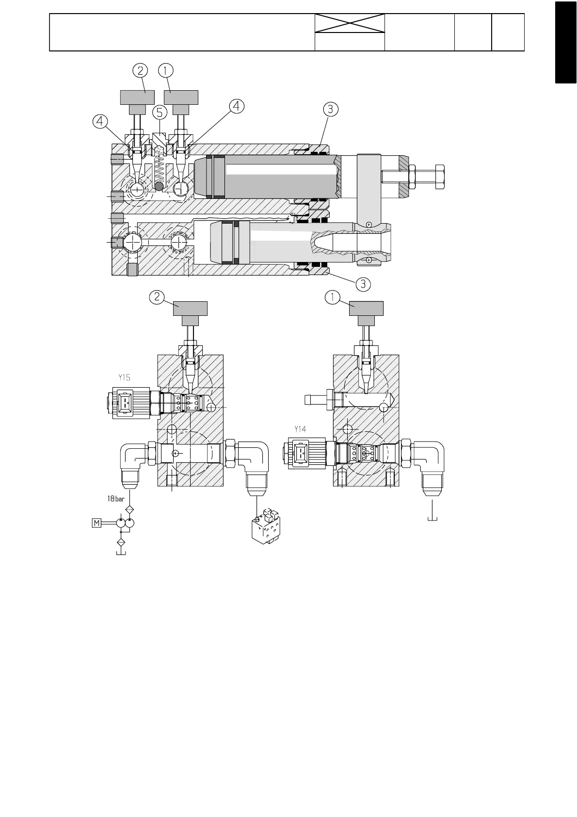
B. HiShift hydraulic block
Oil continuously ci rculates in the HiShift block from the
tractor low pressure circuit and its pressure releases and
engages the clutch. If the low pressure circuit has malfunc-
tions, it affects the Hi Shift.
The damping part is not connected to the tractor hydraulic
system, but its own circuit uses clutch fluid (=brake fluid).
In connection with malfunctions, check the c lutch fluid level
in the reservoir, when the pedal is in the upper position.
Leaking piston seals can be changed after unscrewing seal
flanges (3). The filling valve spring and ball can be
removed by unscrewing plug (5) between the restrictions (1
and 2).
The restriction spindl es have o---rings (4), which can be
changed. Do not screw in the spindles too hard, otherwise
the spindle tapered surfaces can damage. The restriction
spindles have se curing nuts.
Important! The seal rings of the damping cylinder solenoid
valve Y15 are of different material to the seal rings of the
solenoid valve Y14, and they must not be inter changed.
Note! Before fitting the solenoid, make sure that the circuit
in question is brake fluid circuit. Remove o---rings on the
new solenoid valve, wipe off oil on the new solenoid and
lubricate new o---rings, which are delivered with the repair
kit, with brake fluid and fit them (do not lubricate the o---
rings with oil).
In connection with repair works the solenoid valve Y15 seal
rings must not lubricate with oil but, if needed, with clutch
fluid.
In connection with repairs, t ighten the joint between the
hydraulic block and the cab front wall to make watertight
(e.g.Silicone 2650 black).

Table of Contents

Related product manuals