EasyManua.ls Logo

Valtra 6000 - Page 732

Valtra 6000
1361 pages
Print Icon
To Next Page IconTo Next Page
To Next Page IconTo Next Page
To Previous Page IconTo Previous Page
To Previous Page IconTo Previous Page
Loading...
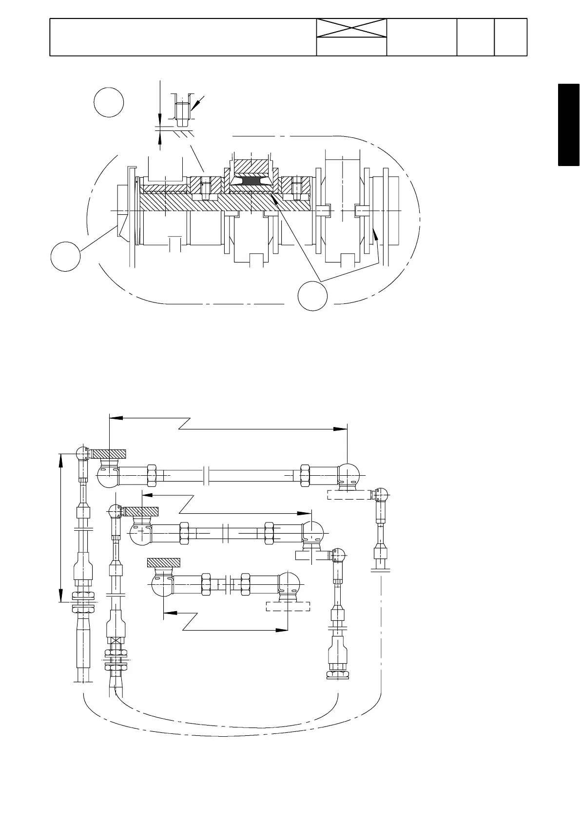
Adjust shifter rods and cable wires
to dimensions shown in figure.Ad-
justmentcanbedonethroughaac-
cess hole on the RH side mud-
guard.
681
Model Code Page
42 Gearbox
13420
6000--8750
1. 1. 1995
1. 9. 1992
LOCTITE 542
0,3...0,7 mm
5
6
4
D
Figure 13. Gear lever support shaft (point D in figure 12)
Note! Rubber joints allow side movement for the speed and range gear levers
4. Force at the end of the reverse shuttle lever is adjusted to 10 ---20 Nm by tightening the shaft
5. Adjust distance to 0,3 ---0,7 mm by turning the pin
6. Universal grease
386---388 mm
446---448 mm
266---268 mm (---657167)
241 mm
M --- H
LL
2 --- 1
4 --- 3
R --- F
E
271---273 mm
Figure 14. Shifter rods and cable wires for inwards/outwards movement of the selector levers (point E in figure 12).
The gear lever must stand in the neutral position when adjusting measurement 241.

Table of Contents

Related product manuals