EasyManua.ls Logo

Valtra 6000 - Page 802

Valtra 6000
1361 pages
Print Icon
To Next Page IconTo Next Page
To Next Page IconTo Next Page
To Previous Page IconTo Previous Page
To Previous Page IconTo Previous Page
Loading...
NOTE! The latest modifications of
the mechanic al shuttle and 4WD
clutch, see page 440/27.
749
Model Code Page
6000--8750 19440
44. Quick---shift gear, reverse shuttle
and 4WD clutch
1. 8. 2000
1. 11. 1998
Utan DPS
Without DPS
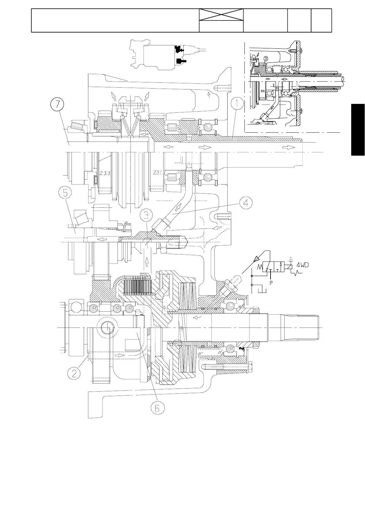
Picture 10. Mechanical reverse shuttle and 4WD clutch on
tra cto r s w h i ch h a v e a 3 --- s te p q u ic k --- sh if t gea r (D el t a Powe r s -
hift).
1. Reverse shuttle input shaft
2. Lubricating oil inlet
3. Lubricating oil distribution piece
4. Lubricating oil to reverse shuttle and quick---shift gear
5. Bevel pinion shaft front end
6. 4WD multi---disc clutch (see also page 440/21)
7. Gearbox input shaft
Note! On tractors with Delta Powershift, the revese shuttle
layshaft and reversing shaft are the same as earlier, see pre-
vious page. Between the reverse shuttle input shaft bearings
there is a loose metal ring and the ball bearing of the input
shaft has circlips on both sides of the bearing.
Note! This shuttle and 4WD clutch is also on latest tractors
which have not the Delta Power Shift. In this case, the shuttle
input shaft is tightened with a flange which has an oilseal. Also
inside the input shaft, there is a needle bearing and a seal for
thepump(PTO)driveshaft.

Table of Contents

Related product manuals