EasyManua.ls Logo

Valtra 6000 - Page 855

Valtra 6000
1361 pages
Print Icon
To Next Page IconTo Next Page
To Next Page IconTo Next Page
To Previous Page IconTo Previous Page
To Previous Page IconTo Previous Page
Loading...
802
Model Code Page
45. Final drives
6250--8950 450 6
1. 8. 2000
1. 11. 1998
HiTech
10---20 Nm
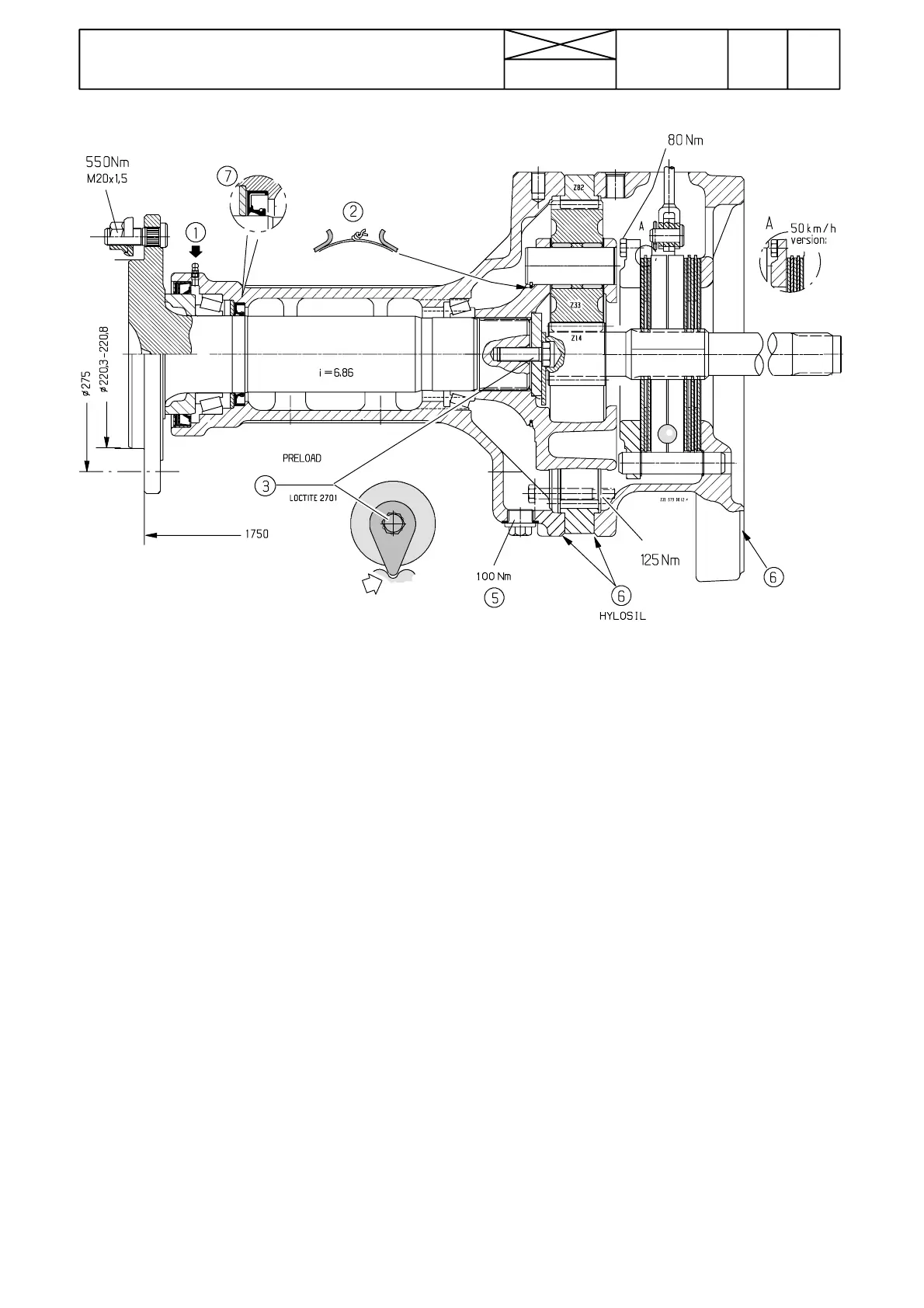
Picture 4. Final drives 650 on 6250Hi ---8950Hi ( ---K36111) and 6600 ---8750 (J02316 ---K36111).
1. Grease nipple (greasing at every 1000 running hours)
2. Wind the wire ends one to one and a half turns and bend them
3. Bearing clearance is adjusted by tightening the centre bolt to 10---30 Nm. Apply Loctite 270 onto bolt threads.
5. Draining plug
6. Sealing compound Hylosil
7. Pla stic ring in front of outer oil seal *)
*) In order to increase the oil volume (cooling advantage), the inner seal has been moved outwards. Axle housing, hub shaft and
the oil seal have different spare part numbers. The plastic ring is a new part.

Table of Contents

Related product manuals