EasyManua.ls Logo

Valtra 6350 - Page 1128

Valtra 6350
1361 pages
Print Icon
To Next Page IconTo Next Page
To Next Page IconTo Next Page
To Previous Page IconTo Previous Page
To Previous Page IconTo Previous Page
Loading...
1071
Model
Page
3(4)
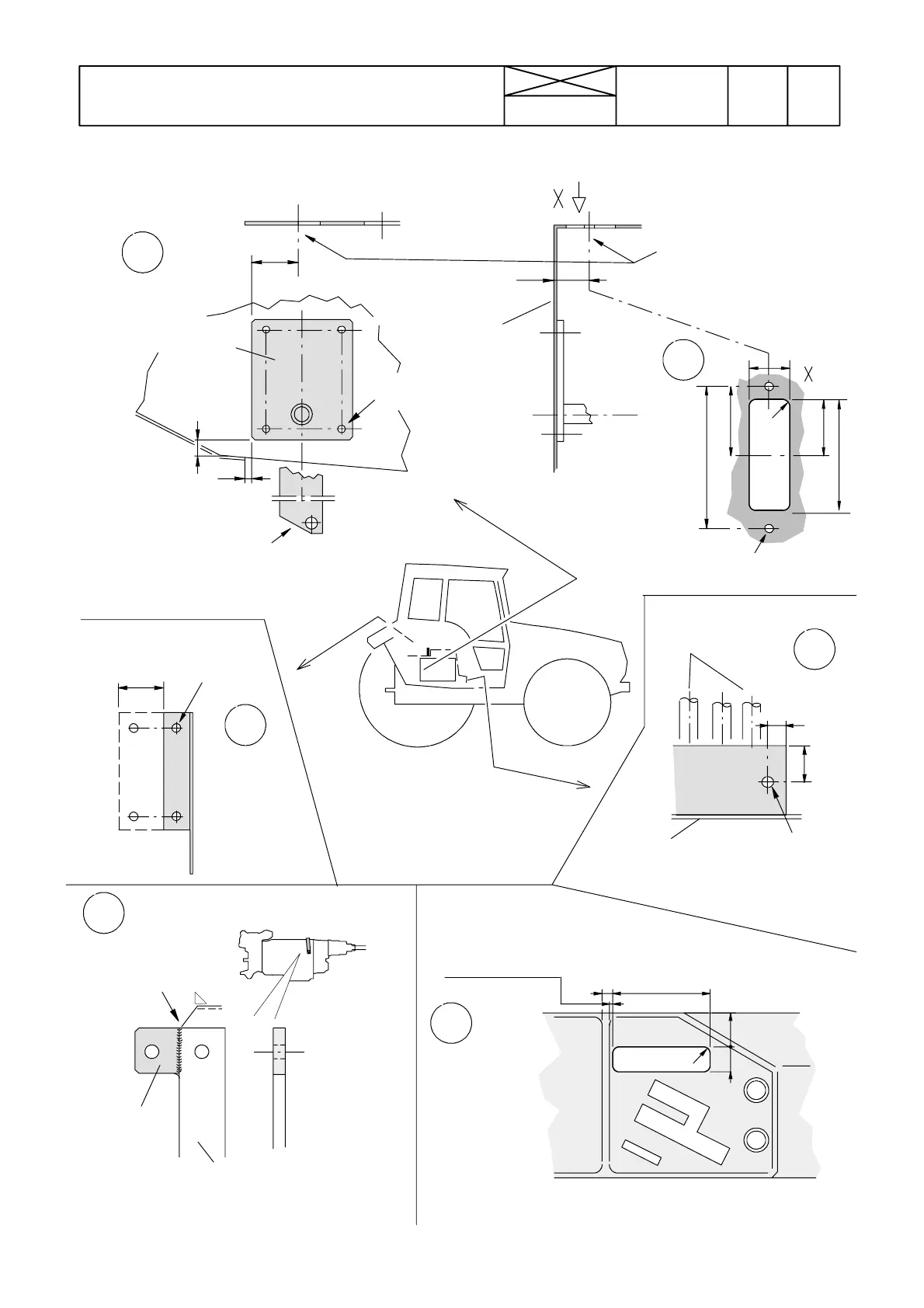
SHUTTLE LEVER (Twin---Trac), fitting instruction
6000---875015.11.1997
Number
69.4
25.09.1997
C
B
D
E
A
Kiinni toisissaan
”Kant i kant”
70157400
Suunnanvaihtovipu (vaiht.)
Hävarm, fram---back (växellåda)
37
Poistetaan / avtages:
ø7mm(2x)
ø 12,5 mm
20
40
Ohjaamon lattia
Hyttgolv
Vaihdevivut
xelspakar
R
12010
(aikaisempi versio: 5)
(tidigare utförande: 5)
4032
ø8mm(4x)
15
10
43
Vaihdevipu asennetaan
viisto reuna taaksepäin
xelspak monteras med
fas bakåt
Ohjaamon seinä
Hyttvägg
Suojuksen ja vaihdevivun
aukon keskiviiva
Mittlinje av hål för damask
och växelspak
40
R
140
63
113
56,5
Suojuksen aukko:
Hål för damask:
28
70157100
A.1
Cab wall
The gear lever must be fiitted so,
that the notch points backwards
Opening for the shield:
Center line for the shield and
the shield opening
In touch
Removed:
Gear lever (gearbox)
(earlier version: 5)
Gear levers
Cab floor

Table of Contents

Related product manuals