EasyManua.ls Logo

Valtra 6350 - DPS in Transmission

Valtra 6350
1361 pages
Print Icon
To Next Page IconTo Next Page
To Next Page IconTo Next Page
To Previous Page IconTo Previous Page
To Previous Page IconTo Previous Page
Loading...
795
Model Code Page
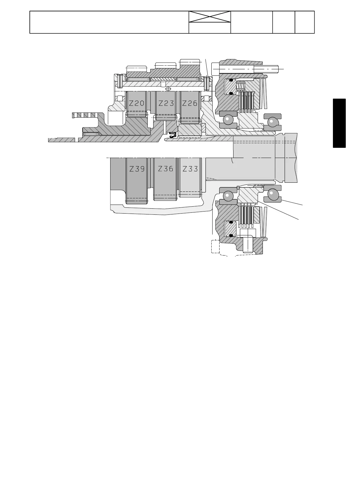
44. Delta power shift
15. 5. 1996
8050--8750 444 9
4. DPS in transmission
650
1
4
A. Changing the planet gears and recondi-
tioning planetary ge ar multi---disc clutch
C3
1. Remove the DPS housing and the planetary gear on the
front surface of the reverse shuttle and remove bearing (1),
hub (4) and the cup springs and remove the disc pack, see
instr. A paragraphs 1---6 on page 444/1.
Note! Thesteeldiscsinthisclutch(C3)aredifferentcom-
pared with the s teel discs in clutches C1 and C2. The friction
discs, however, are the same as in other clutches.
2. Reconditioning the multi---disc clutch C3 is done in the
same way as on transmissions 300 and 460.
3. Changing planet gears, see instr. A points 10---13 on page
444/2.
3. Assembling the planetary gear and fitting the gear and the
DPS housing onto the shuttle front face, see instr. 444 1A
points 19---26 on page 444/3.

Table of Contents

Related product manuals