EasyManua.ls Logo

Valtra 6350 - Page 210

Valtra 6350
1361 pages
Print Icon
To Next Page IconTo Next Page
To Next Page IconTo Next Page
To Previous Page IconTo Previous Page
To Previous Page IconTo Previous Page
Loading...
203
Model Code Page
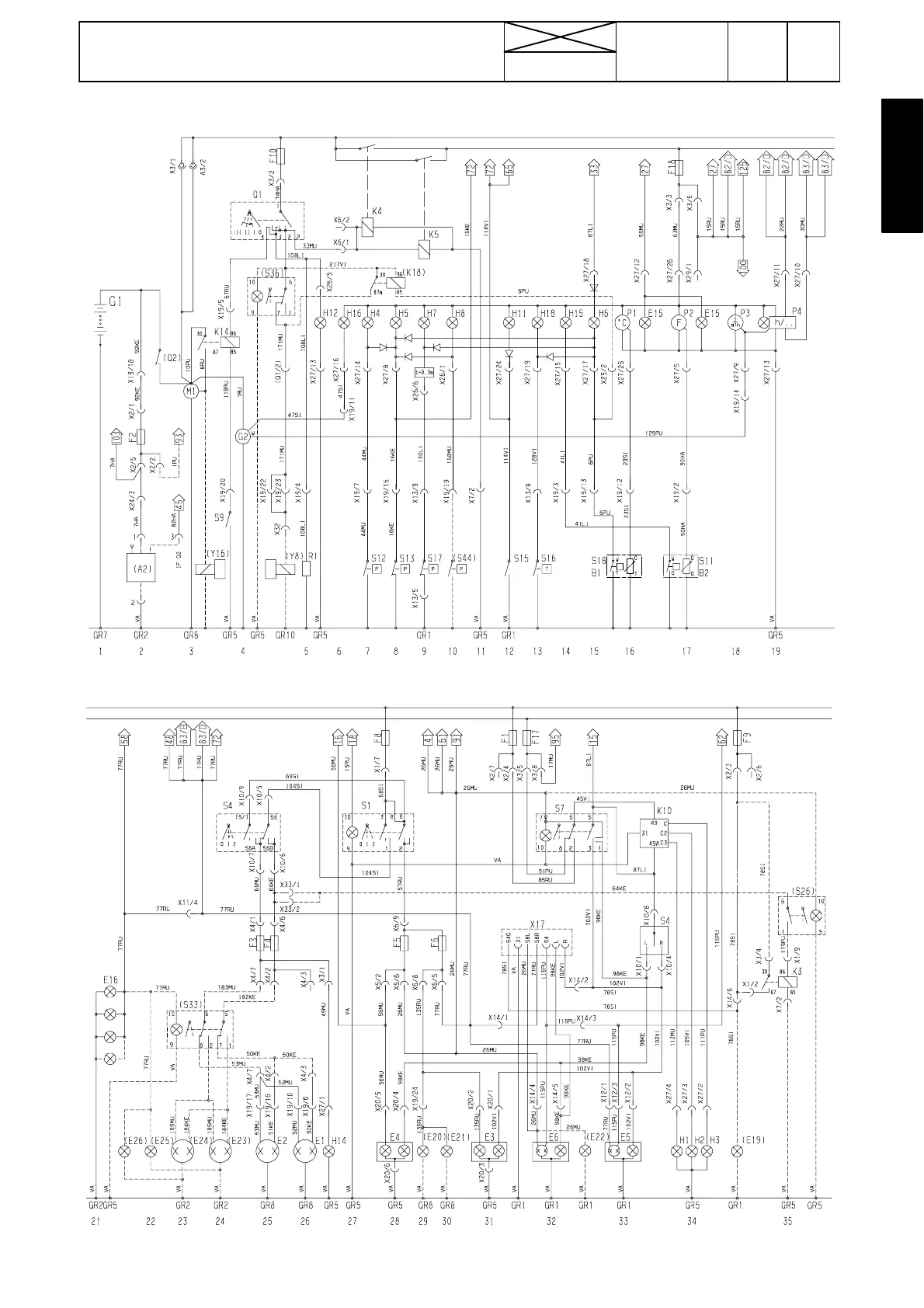
31. Tractor electrical system
1. 6. 1999
6200--8750
310 53
31871650A
AC 2.2.1
AC 2.2.2

Table of Contents

Related product manuals