EasyManua.ls Logo

Valtra 6650 - Page 689

Valtra 6650
1361 pages
Print Icon
To Next Page IconTo Next Page
To Next Page IconTo Next Page
To Previous Page IconTo Previous Page
To Previous Page IconTo Previous Page
Loading...
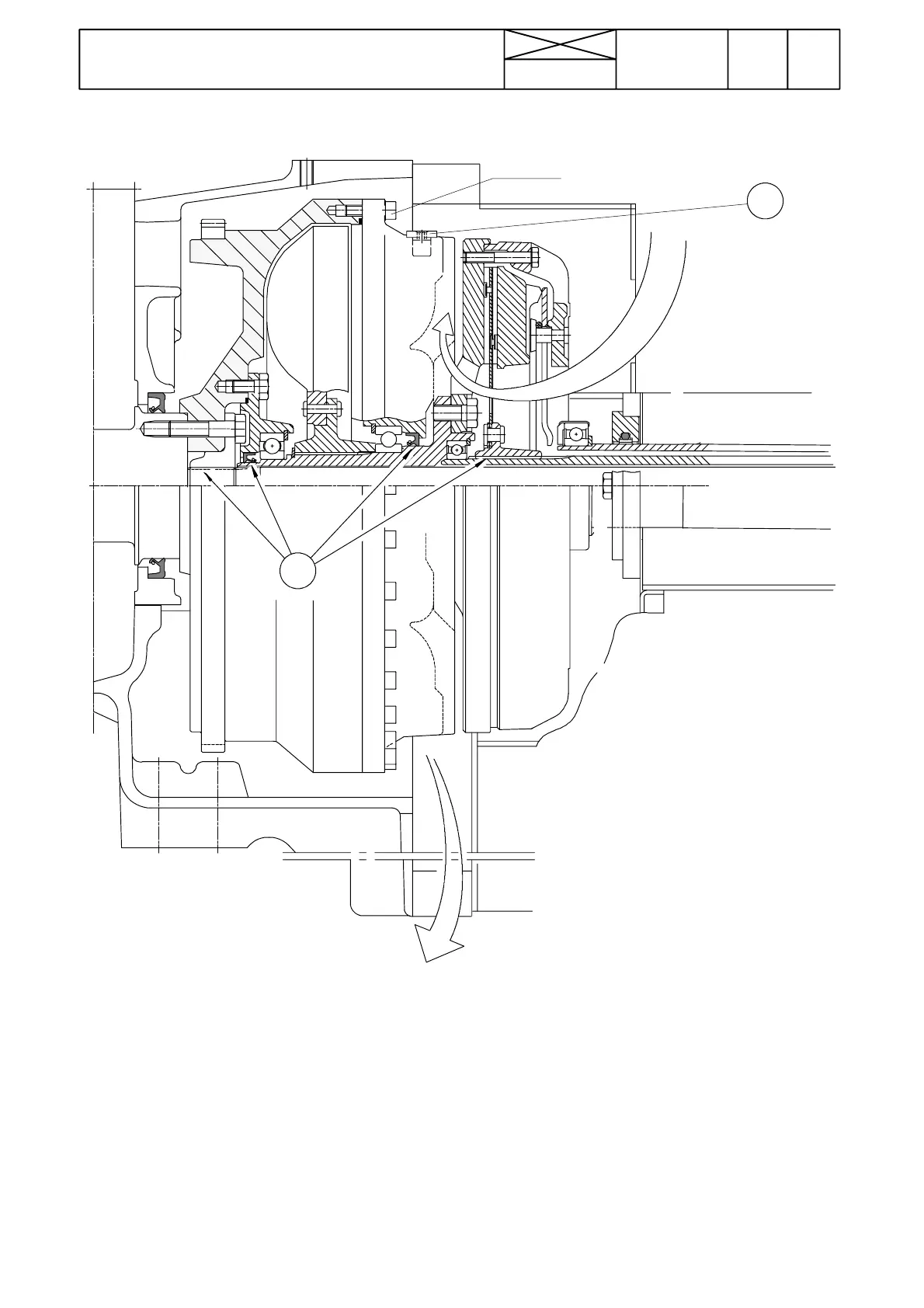
Figure 4. Hydraulic coupling Voith
(6000 ---8000 Hi ---Trol)
1. Oil filling/draining plug
2. Pressure---resistant grease
640
Model Code Page
41. Clutch
6000--8750 410 6
1. 1. 1995
15. 6. 1992
Hydraulic coupling Voith (---658205 and 666066---)
2
25 Nm
1
V almet 6000---8000 Hi---Trol ---models are equipped with a hy-
draulic coupling between the flywheel and the clutch. The
mechanical clutch (except the disc) and its adjusting values
are the same as on models without the hydraulic coupling
(see figure 1).
The hydraulic coupling is maintenance---free. It is not even
necessary to check the oil level.
Oil quality in hydraulic coupling, see page 130/4.
Oil volume in hydraulic coupling, see page 130/4.
Hydraulic coupling type: Voith 390 TD---VA (---658205) or
V o ith TD---FVA1 (666066---)
Diameter: 433 mm
Slip at max. power: 2 %

Table of Contents

Related product manuals